EasyManua.ls Logo

Escea DF960 - Page 17

Escea DF960
61 pages
Print Icon
To Next Page IconTo Next Page
To Next Page IconTo Next Page
To Previous Page IconTo Previous Page
To Previous Page IconTo Previous Page
Loading...
B
ACDEFGSERVICE
17
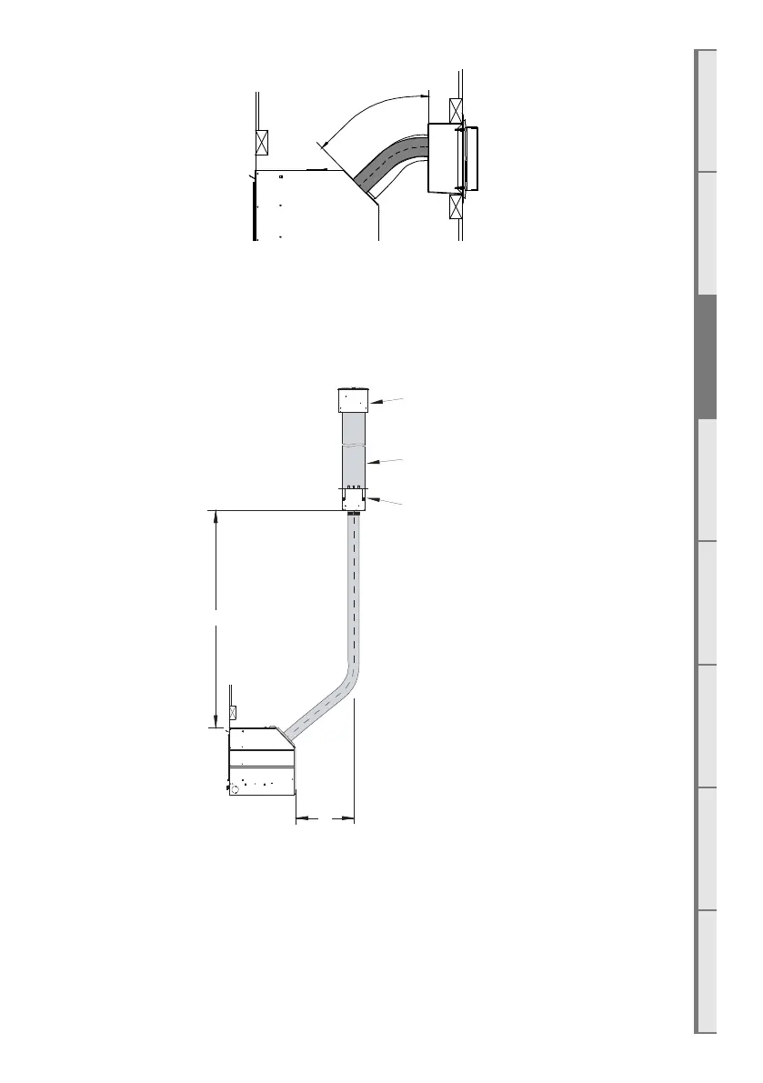
Vertically Terminated: Utilizes the Escea Vertical Power Flue enclosure kit.
400mm Min.
4m Max.
Overall flue length:
X
Y
UVP Fan Unit
1.2m F-F Liner
UVP Cowl
X Max = 4m
Y Max = 4m
X + Y Max = 4m

Table of Contents

Other manuals for Escea DF960

Related product manuals