EasyManua.ls Logo

Festo CPX-CMAX - Page 46

Festo CPX-CMAX
98 pages
Print Icon
To Next Page IconTo Next Page
To Next Page IconTo Next Page
To Previous Page IconTo Previous Page
To Previous Page IconTo Previous Page
Loading...
4 Electrical installation
46 Festo – P.BE-CPX-CMAX-SYS-EN – en 2017-09b – English
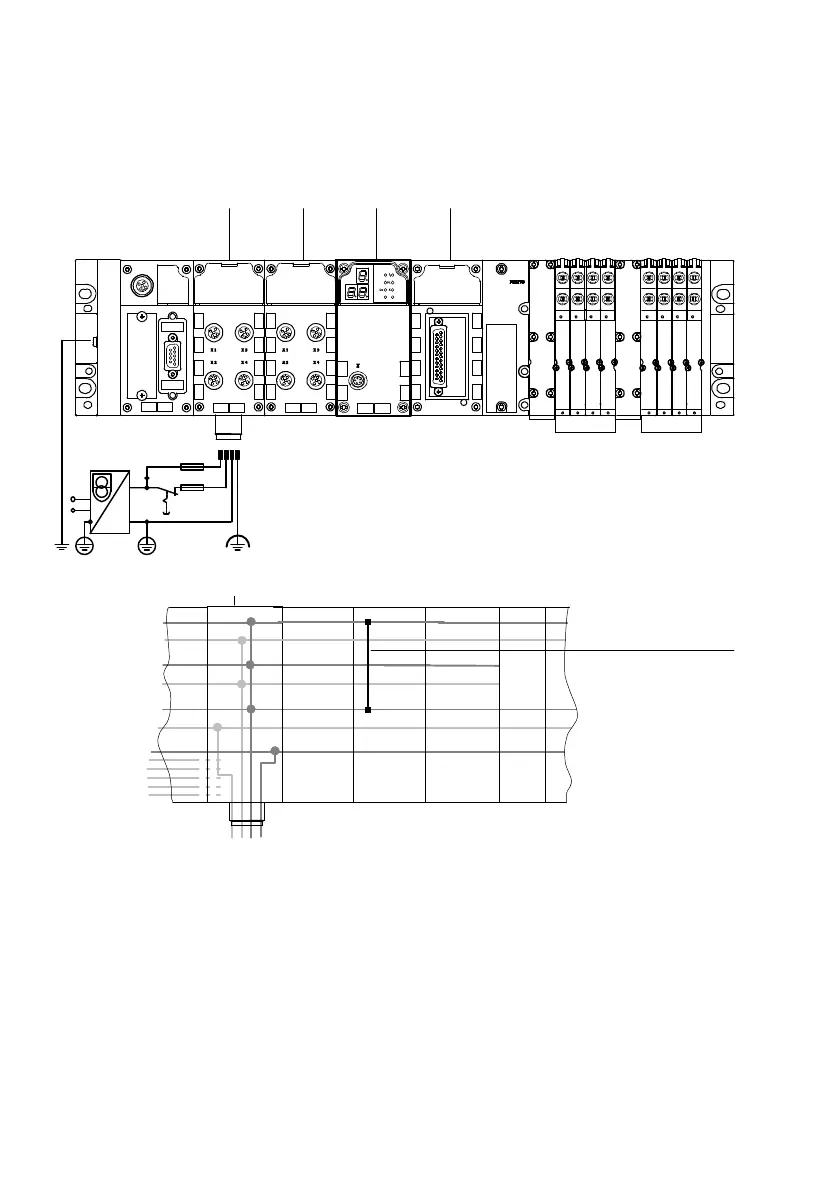
Example of CPX terminal with CMAX with a system feed without additional power supply
In the example, the entire CPX terminal and the CMAX positioning system are provided with power
through a system supply. The VPWP load voltage can only be switched off single-pole!
8DI
8DI4DO
MPA
1 2 3 4
0 V (U
VAL
)
24 V DC (U
VAL)
0 V (U
OUT)
24 V DC (U
OUT)
0 V (U
EL/SEN)
24 V DC (U
EL/SEN)
FE
12
CPX-(M)-GE-EV-S
3
2 2
1 Interlinking block with system feed ...-EV-S
(supplies the CPX terminal with CMAX and
positioning system, here 4-pin)
2 Interlinking blocks without supply
3 The CMAX always internally connects at the
module level the contact rails U
EL/SEN
(0 V)
and U
VAL
(0 V)
Fig. 4.1 Common power supply of CMAX and MPA pneumatics (example)
In the 4-pin system supply shown here, all 0 V potentials are also internally connected (è Fig. 4.1).
Potential separation between U
EL/SEN
(0 V) and U
VAL
(0 V) can be achieved again through an additional
power supply for valves to the right of the CMAX (è Fig. 4.2).

Table of Contents

Related product manuals