EasyManua.ls Logo

Festo CPX-FB13 - Page 58

Festo CPX-FB13
166 pages
Print Icon
To Next Page IconTo Next Page
To Next Page IconTo Next Page
To Previous Page IconTo Previous Page
To Previous Page IconTo Previous Page
Loading...
2. Commissioning
2−18
Festo P.BE−CPX−FB13−EN en 0811c
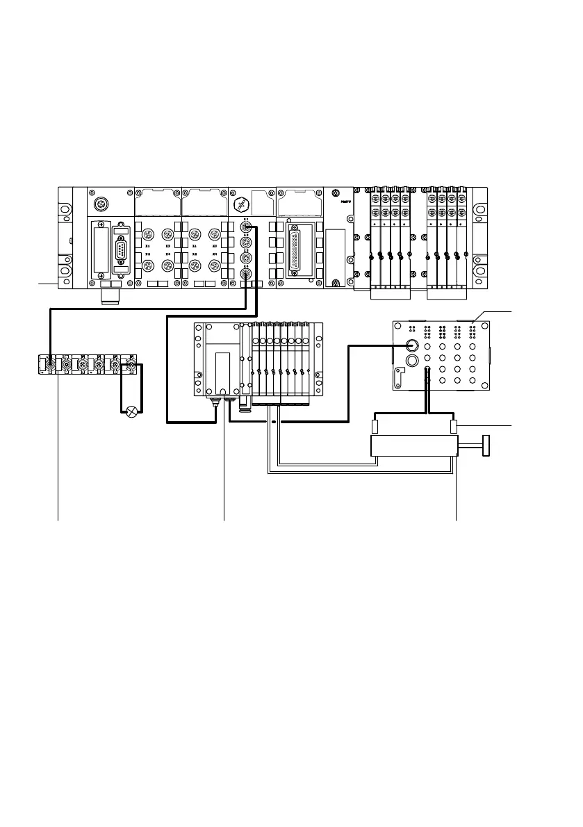
Example 3: CPX terminal with CP interface
1234 5 6
Module no.:
0
8 O8 O
1
23 4
5
6
8DI
4DO
8DI
8DO
String 4
String 1
String 1
1 CPX terminal with CP interface
(module no. 3)
2 CP−CL output module on CP string 4
3 MPA−CPI valve terminal on CP string 1
4 Cylinder
5 Sensor
6 CP−EL input module
Fig.2/4: Example terminal 3 (with CP interface)

Table of Contents

Other manuals for Festo CPX-FB13

Related product manuals