EasyManua.ls Logo

Frymaster FPGL330CA - Filter Pump, Motor and Associated Components

Frymaster FPGL330CA
102 pages
Print Icon
To Next Page IconTo Next Page
To Next Page IconTo Next Page
To Previous Page IconTo Previous Page
To Previous Page IconTo Previous Page
Loading...
2-22
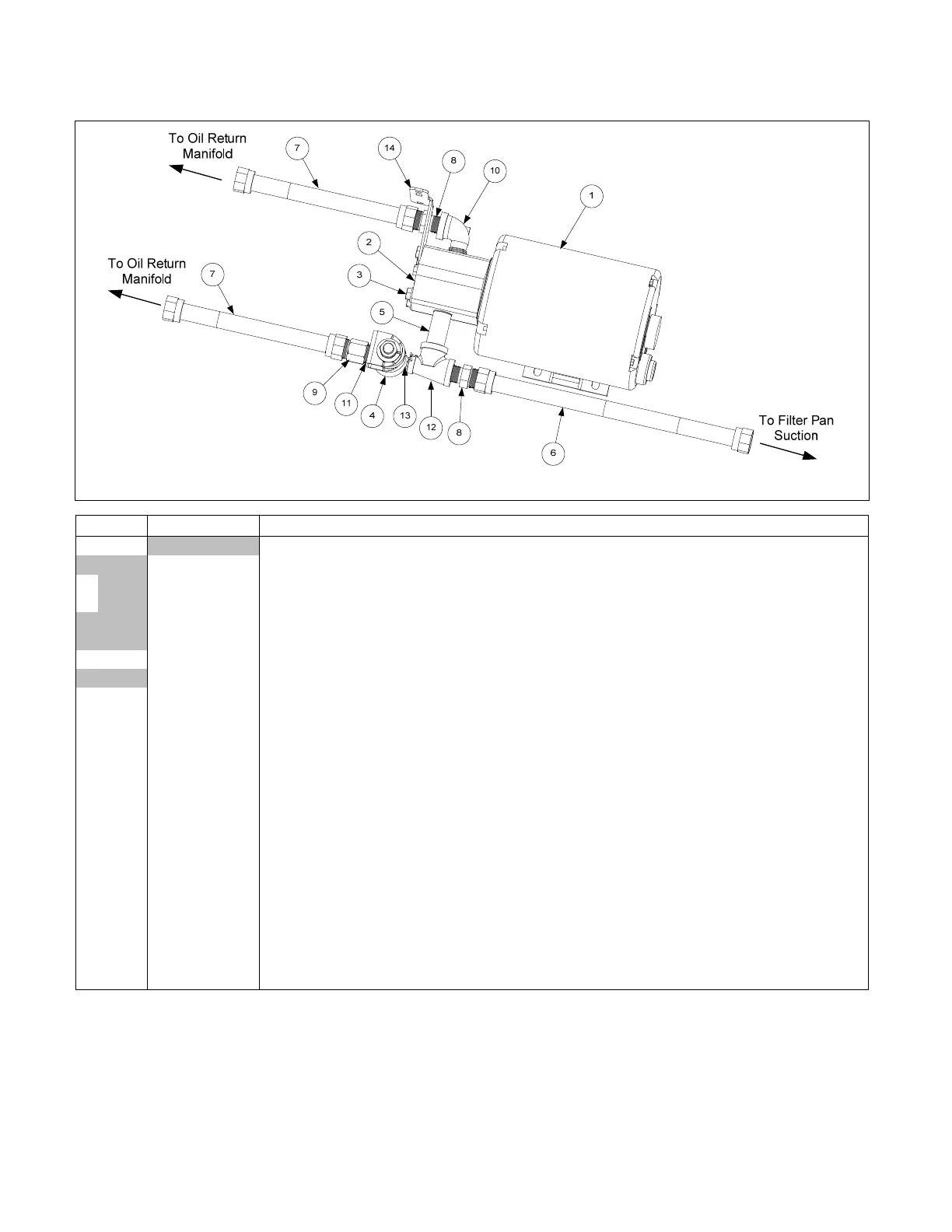
2.10 Filter Pump, Motor and Associated Components
ITEM PART # COMPONENT
1 Motor and Gasket Kit
826-1785 100V 50/60 Hz
826-1712 115V 50/60 Hz
826-1756 208V 50/60 Hz
826-1270 220-240V 50/60 Hz
826-1755 250V 50/60 Hz
2 826-3191 Pump and Gasket Kit, Viking 4 GPM (includes gasket and cap screws below)
816-0093 Gasket, Pump/Motor
3 809-1062 Cap Screw, 5/16-inch-18 4.00” NC Hex (Connects pump to motor.)(use 8090194
washers)
* 108-0649 Heater Strip Assembly, 100-120V 25W 18”
* 106-5912 Heater Strip Assembly, 208-250V 25W 18”
4 106-7598SP Valve, Solenoid ¼-inch” NPT
5 813-0265 Nipple, ½-inch x 2.50-inch NPT BM
6 810-1057 Flexline, 13-inch Oil Return
7 810-1067 Flexline, 8.5-inch Oil Return
8 810-1668 Adapter, -inch to ½-inch NPT Male
9 810-1669 Adaptor, Female -inch OD x ½-inch
10 813-0165 Elbow, ST ½-inch x ½-inch NPT 90° BM
11 813-0304 Bushing, ½-inch x ¼-inch BM Flush
12 813-0530 Tee, Reducing ½-inch x ¼-inch x½-inch
13 813-0838 Nipple, ¼-inch NPT BM Close
14 220-6191 Brace
* 106-1020 Wiring, Pump
* Not illustrated.
Recommended parts.

Table of Contents

Related product manuals