EasyManua.ls Logo

GE Precision 500D - Page 176

GE Precision 500D
323 pages
Print Icon
To Next Page IconTo Next Page
To Next Page IconTo Next Page
To Previous Page IconTo Previous Page
To Previous Page IconTo Previous Page
Loading...
om 5184516-100 Rev. 5 7-10
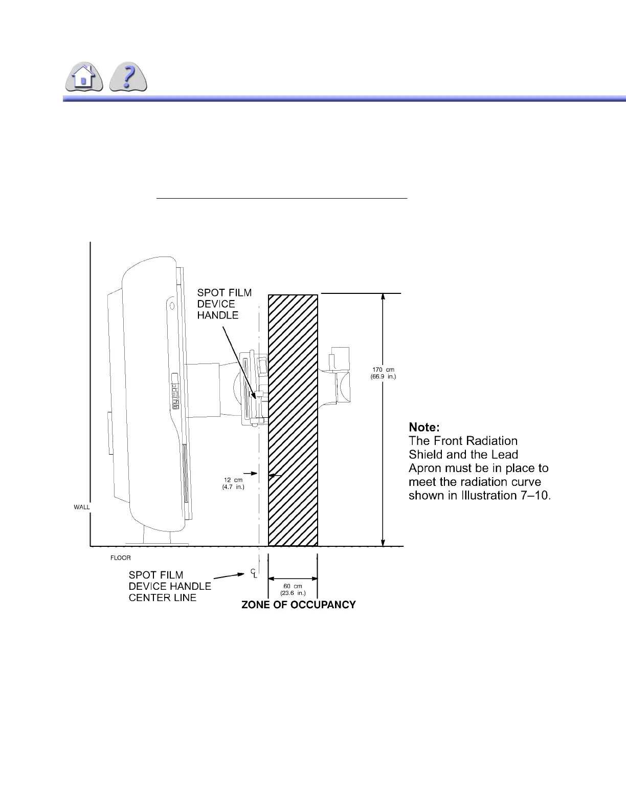
ILLUSTRATION 7-7
DESIGNATION OF SIGNIFICANT ZONE OF OCCUPANCY –TABLE VERTICAL
FOR TRAINING PURPOSES ONLY!
NOTE: Once downloaded, this document is UNCONTROLLED, and therefore may not be the latest revision. Always confirm revision status against a validated source (ie CDL).

Table of Contents

Related product manuals