EasyManua.ls Logo

Johnson Controls YZ - Purge panel enclosure and schematics for 50 Hz

Johnson Controls YZ
94 pages
Print Icon
To Next Page IconTo Next Page
To Next Page IconTo Next Page
To Previous Page IconTo Previous Page
To Previous Page IconTo Previous Page
Loading...
Purge panel enclosure and schematics for 50 Hz
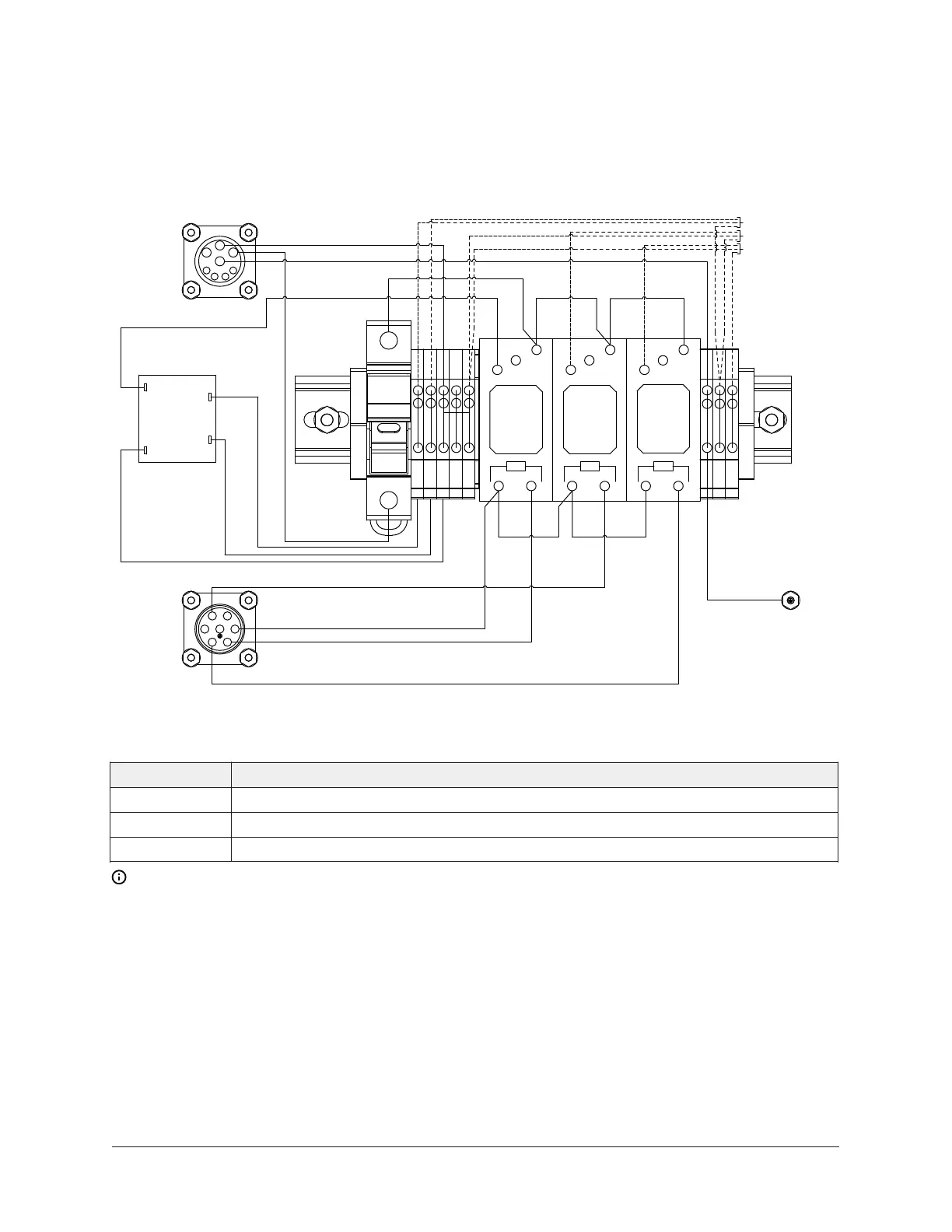
Figure 23: Purge panel enclosure and schematics for 50 Hz
LD23463
1
2
3
A
B
C
D
G
N
WHT
4
2
3
5
1
BOT.
TOP
FU1
15A
4
2
3
5
1
4
2
3
5
1
1
1
1
N
PE
G
GRN/YEL
L
L
2
2
2
34
29
2
29
34
165
SUP
SUP
SUP
BOX
GND
P-VSD
P-OV
165
PE
GRN/YEL
TO PURGE CONDENSING UNIT
TO PURGE PUMP
TO REGEN TANK
(OPTIONAL)
N
N
N
BLU
BRN
BLU
GRN/YEL
BLK*
BLK*
WHT
BLK*
BLK*
BLK*
1HV
6HV
1T
120V
5LV
(LV)
5
1
1
6
115V
240V
(HV)
230V
6HV
1LV
5LV
1HV
BLK*
WHT
WHT
(SEE NOTES 1,2)
1
2
3
4
5
6
14-7P
K120
K121
K122
BRN
BLK*
GRN/YEL
Front View of the Purge Panel
* BLK = 120 Volts.
Item Description
K120 Purge Compressor Relay
K121 Purge Pump Relay
K122 Regen Tank Relay
Note:
1. Install 8A class CC fuse between Terminal 2 and Terminal 7 on the LV side.
2. Install 5A class CC fuse between Terminal 2 and Terminal 7 and 5-8 on the HV side.
Unit Wiring and Field Connections for YZ Centrifugal Chiller with Magnetic Bearing Controller40

Table of Contents

Related product manuals