EasyManua.ls Logo

MTA HAST 080 N - Hydraulic System (Optional)

MTA HAST 080 N
118 pages
Print Icon
To Next Page IconTo Next Page
To Next Page IconTo Next Page
To Previous Page IconTo Previous Page
To Previous Page IconTo Previous Page
Loading...
MAINTENANCE AND OPERATING MANUAL
Description
HAS T 070÷140
38
ENGLISH
EN
The data in this manual are not binding and they can be modified by the manufacturer without notice. Reproduction of this manual is strictly prohibited.
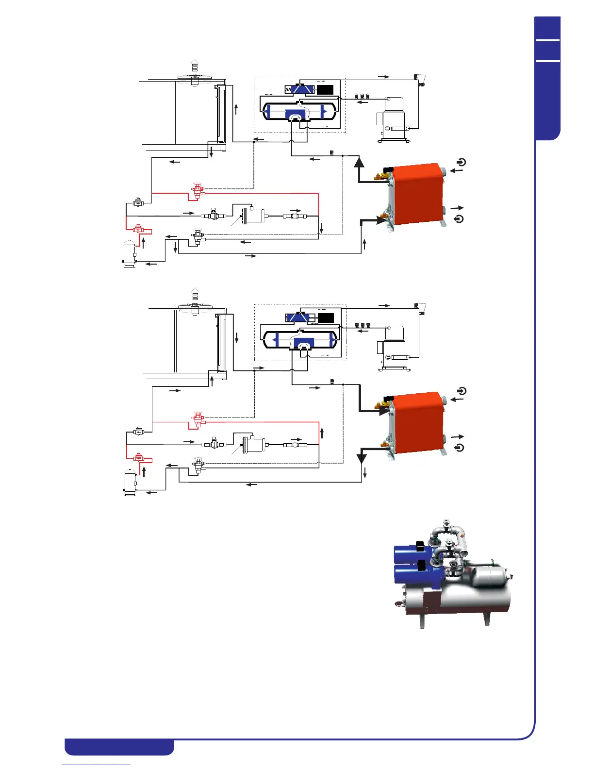
UNIT IN CHILLER MODE
UNIT IN HEAT-PUMP MODE
3.3 Hydraulic system (optional)
The units can be equipped with a hydraulic system on request. The system, which is
installed on board the unit, is composed of centrifugal pump and storage tank and
supplied with the following accessories:
expansion vessel
water pressure relief valve
automatic air bleed valve
discharge valve
water pressure gauge at pump outlet
electric heaters (optional).
Units can be equipped with a medium pressure head pump on request.
Pump installation is envisaged in the following configurations:
single pump
double pump (one in stand-by)
pump and tank assembly
double pump (one in stand-by) and tank unit.
4-WAY
CYCLE REVERSAL VALVE
SCHRAEDER
VALVES
COMPRESSOR/S
WATER
WATER
EVAPORATOR
Coil
Spool
FANS
THERMOSTATIC VALVE
DRAIN COCK
CHECK
VALVE
FILTER
LIQUID SIGHT-GLASS
THERMOSTATIC VALVE
LIQUID RECEIVER
SCHRAEDER
VALVE
CHECK
VALVE
Main valve
CONDENSER
Pilot valve
UNIT
INLET
OUTLET
4-WAY
CYCLE REVERSAL VALVE
SCHRAEDER
VALVES
COMPRESSOR/S
WATER
WATER
EVAPORATOR
Coil
Spool
FANS
THERMOSTATIC VALVE
DRAIN COCK
SCHRAEDER
VALVE
FILTER
LIQUID SIGHT-GLASS
THERMOSTATIC VALVE
CHECK
VALVE
CHECK
VALVE
Main valve
CONDENSER
Pilot valve
UNIT
INLET
INLET
RECEIVER

Table of Contents

Related product manuals