EasyManua.ls Logo

Nibe FIGHTER 1330 - Connection Details

Nibe FIGHTER 1330
88 pages
Print Icon
To Next Page IconTo Next Page
To Next Page IconTo Next Page
To Previous Page IconTo Previous Page
To Previous Page IconTo Previous Page
Loading...
Docking 15
FIGHTER 1330
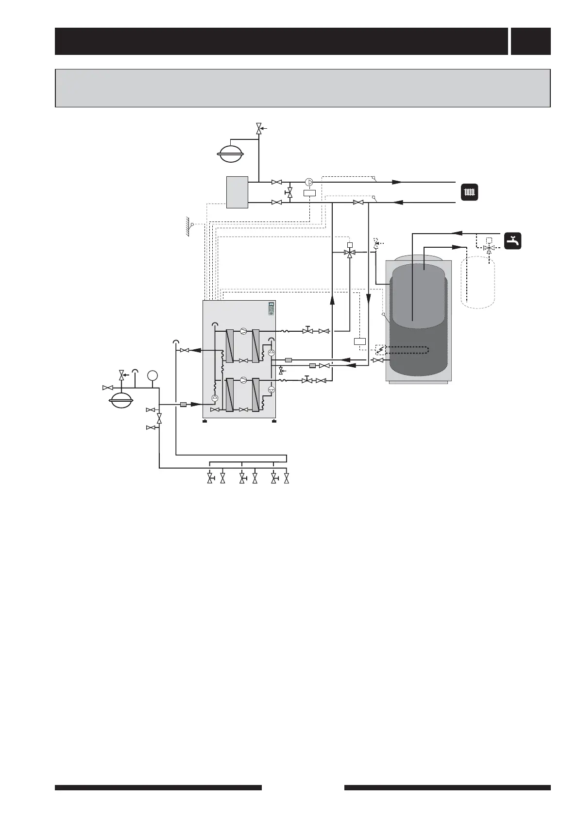
Example, FIGHTER 1330 docked with an electric element
/electric boiler and water heater (floating condensing)
B
A
HR
T
Elkassett/
Elpanna
AV
FG
RG
BV
BV
BV
VXV
RV
RV
SF
SF
AV
SÄV
VVG
VVB / ACK
VVB
UG
SF
P
EXP
AV
KB-ut
KB-in
VBP3
HR
RV
AV
A B I II
50.0 C
Varmvattentemperatur
13.43
1.0
A B
SÄV
EXP
SÄV*
A Heat pump module A
AV Shutoff valve
B Heat pump module B
BK/JK Rock collector/Soil collector
BV Non-return valve
EXP Expansion tank with necessary
safety equipment
FG Flow sensor
HR Auxiliary relay/Contactor with bypass
LV Level vessel
RG Return sensor
RV Control valve
SF Particle filter
SÄV Safety valve
UG Outside temperature sensor
VBP3 Heating medium pump 3
VVB Water heater
VVB/ACK Accumulator with water heater
VVG Hot water sensor
VXV Shuttle valve
FIGHTER 1330 gives priority to hot water charging at
half power (heat pump module B) via a shuttle valve
(RV). When the water heater/accumulator tank (VVB/
ACK) is fully charged the shuttle valve (VXV) switch-
es over to the heating circuit. When there is a heat
requirement, module A starts first. For larger require-
ments, module B takes care of the heating. The elec-
tric boiler is connected automatically when the energy
requirement exceeds the capacity of the heat pump.
If VVB/ACK is fitted with an immersion heater (IU) and
a junction box (K11) the Extra hot water function can
be used. A by-pass contactor is recommended.
* A safety valve must be installed if the VPA is
equipped with an immersion heater.
Electric
element/boiler

Table of Contents

Related product manuals