EasyManua.ls Logo

Nibe FIGHTER 1330 - Oil Boiler Operation; Connection of Oil Boiler

Nibe FIGHTER 1330
88 pages
Print Icon
To Next Page IconTo Next Page
To Next Page IconTo Next Page
To Previous Page IconTo Previous Page
To Previous Page IconTo Previous Page
Loading...
Description of functions - Basic functions
FIGHTER 1330
28
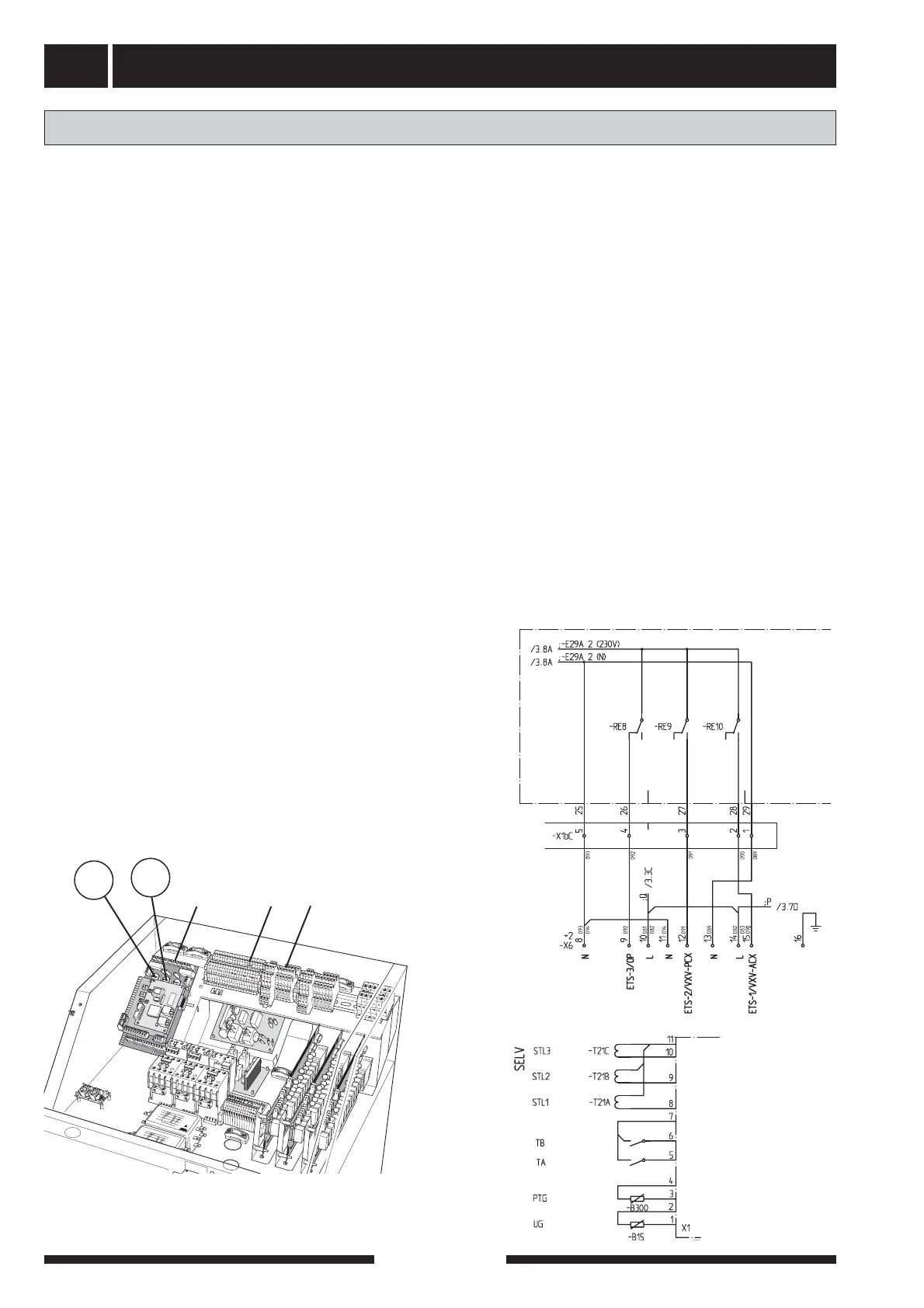
Connection of electrical additional heater
ETS-1 is connected to terminal blocks X6:13 (N) and
X6:15 (230 V with activation).
ETS-2 is connected to terminal blocks X6:11 (N) and
X6:12 (230 V with activation).
ETS-3 is connected to terminal blocks X6:8 (N) and
X6:9 (230 V with activation).
ETS-4, ETS-5 and ETS-6 are accessories (Expansion
card 1)
ETS-4 is connected to terminal blocks X6A:15 (N)
and X6A:14 (230 V with activation).
ETS-5 is connected to terminal blocks X6A:11 (N)
and X6A:13 (230 V with activation).
ETS-6 is connected to terminal blocks X6A:11 (N)
and X6A:12 (230 V with activation).
Current transformers (STL1, STL2 and STL3) are
connected to the terminal blocks X1:8-X1:11 on the
EBV-card. X1:11 is the common conductor for the
three current transformers. The current transformers
are installed in the distribution box in the house using
unscreened LiYY or screened LiYCY cable. The cable
cross section should be a minimum of 2 x 0.25 with
cable lengths up to 50 m.
+Base card
+EBV-card
The electrical additional heater can be controlled by
up to 6 relays, of which 3 are on the Base card and 3
on Expansion card 1.
FIGHTER 1330 delivers 230 V control signals for addi-
tional heat, i. e. signals to control external relays, con-
tactors etcetera, however, not to power these.
In standby mode, the output ETS-3/OP (Base card)
and the output ETS-6 (Expansion card 1) are voltage
fed.
Stepping takes place at intervals of at least 3 minutes
between the steps when stepping up. When stepping
down the interval between steps is at least 1 minute.
When HPAC is connected on the Base card and select-
ed in menu 9.1.10, the outputs ETS-1 and ETS-2 are
used to control this and accordingly can not be used
to control the electrical additional heater. With that, the
first electrical step is shifted to ETS-3.
When the oil boiler is connected and Electri/Oil is
selected in menu 9.1.8, the relay ETS-3 is used to
control the oil boiler and the electrical additional heat-
er then jumps over this relay when stepping.
All electrical output can be force out by shorting the
input Tariff B (TB).
By using the Fuse knob (100) (adjustable to 16, 20,
25, 35, 50 or 63 A) the current through the ring cores
can be limited. The last connected electrical output is
automatically disconnected if this happens. Extra hot
water - immersion heater (XVV) is disconnected last of
all. The setting can be checked in the menu 8.3.1.
The Max electrical output knob (101) permits a limi-
tation in the number of available electrical steps as
part of the number of possible electrical steps accord-
ing to immersion heater type (menu 6.2.1) and relay
setting (menu 6.2.2). Variable setting between 10 and
100 percent. The setting can be checked in the menu
8.3.2.
Electrical additional heater
LEK
X1 X6 X6A
101
100

Table of Contents

Related product manuals