EasyManua.ls Logo

Nibe FIGHTER 1330 - HPAC (Heating and Cooling)

Nibe FIGHTER 1330
88 pages
Print Icon
To Next Page IconTo Next Page
To Next Page IconTo Next Page
To Previous Page IconTo Previous Page
To Previous Page IconTo Previous Page
Loading...
Description of functions - Basic functions
FIGHTER 1330
30
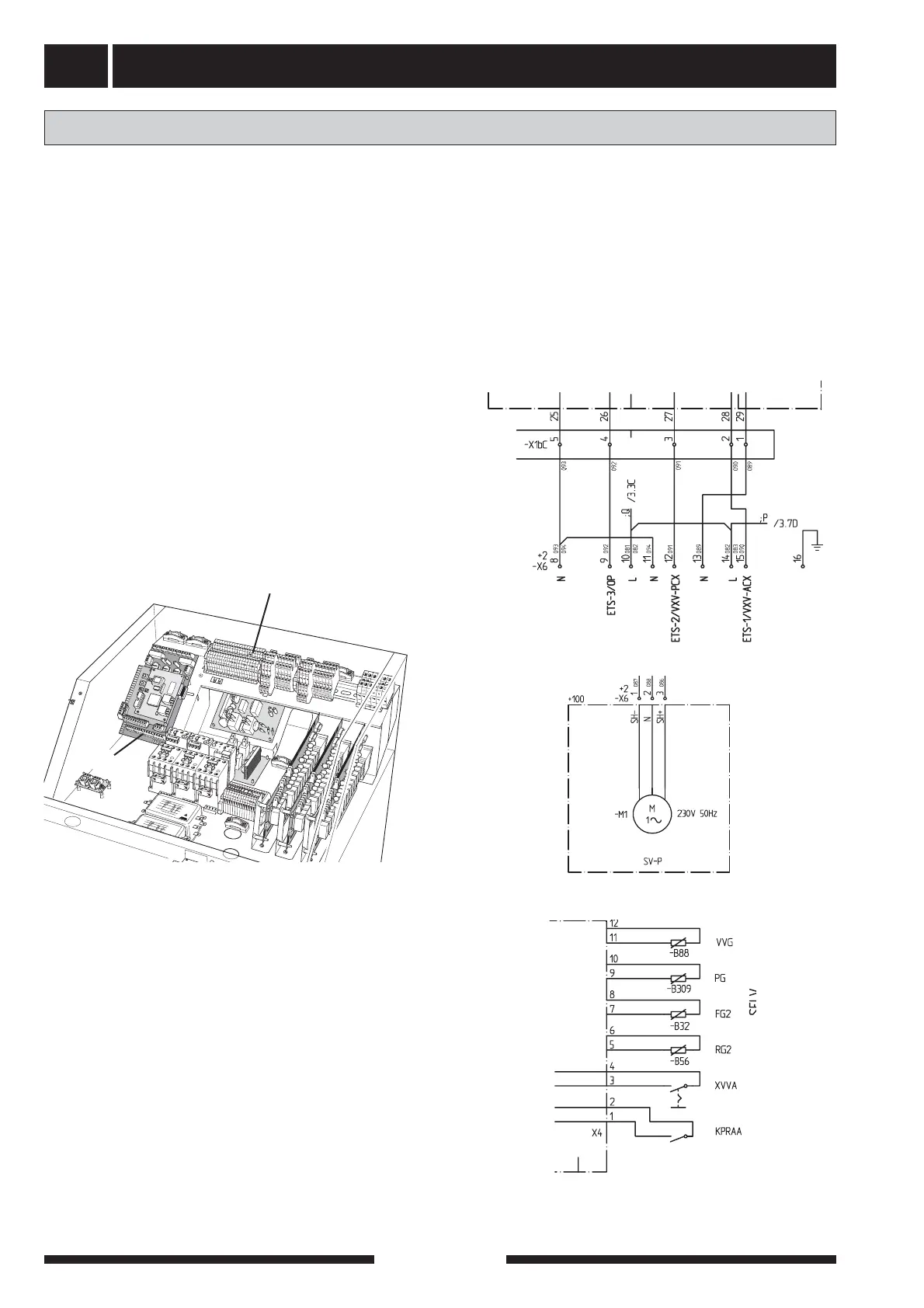
Connection of oil boiler
ETS-3/OP is connected to terminal blocks X6:8 (N)
and X6:9 (230 V with activation).
The shunt valve (SV-P) is connected to the terminal
blocks X6:1 (decrease signal), X6:2 (N) and X6:3
(increase signal).
The boiler sensor (PG) is fitted in the top of the boiler.
The sensor must make good contact with the meas-
urement area to give the best function. The sensor is
connected to screw terminals X4:9 and X4:10 on the
EBV-card.
The oil burner is controlled by a relay (ETS-3/OP) and
the shunt valve's (SV-P) increase/decrease signals
using 2 relays. A boiler sensor (PG) should also be
installed.
When the degree-minute setting is reached the oil
burner starts. When the temperature reaches the
required temperature on the boiler sensor (PG), the
shunt starts to regulate with increase and decrease
pulses after the set period and pulse times. When the
temperature in the boiler is below the set temperature,
the shunt valve moves towards the closed position.
In standby mode the output ETS-3/OP (Base card) is
voltage fed and with that, FIGHTER 1330 requests the
oil boiler. However, the boiler shunt (SV-P) must be
controlled manually in standby mode.
Oil boiler
+Base card
LEK
X6
X4
+EBV-card

Table of Contents

Related product manuals