EasyManua.ls Logo

Nibe FIGHTER 360P - Dimensions; Dimensions and Setting-Out Coordinates; Measuring Principle

Nibe FIGHTER 360P
60 pages
Print Icon
To Next Page IconTo Next Page
To Next Page IconTo Next Page
To Previous Page IconTo Previous Page
To Previous Page IconTo Previous Page
Loading...
FIGHTER 360P
For the Installer
Dimensions
Dimensions and setting-out coordinates
A, B och C ska vara 100 % Röd
och 100 % Gul i PB
Undvik rördragning inom streckmarkerat
område för att underlätta service
Skyddsklenspänning Ø 16
Frånluft Ø 125
Avluft Ø 125
Elektrisk
matning Ø 25
Dockning Ø 16
91 90
A 15
Ställbar 15 – 40
250
45
Min avstånd
10 mm från vägg
Lucka på
båda sidor
Er
f
orderligt utrymme
f
ör
demontering av övre frontlucka
77
B
615
115
C
355
600
2095
440
115
295
A, B och C ska vara 100 % Röd
och 100 % Gul i PB
440
115
295
70
35
40
20
35
Udblæs-
ningsluft
Ø 125
Usugning
fra rum
Ø 125
600
Dansk
70
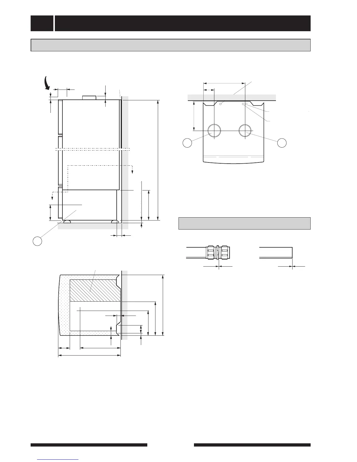
A, B and C: See Connection in List of components.
Pipes must not be run from the floor in the area
indicated by dots.
A clear space of 500 mm is
needed in front of the heat
pump for servicing.
Measuring principle
Klämring
Klemmring
Cu-rör
Kupferrohr
A, B och C ska vara 100 % Röd
och 100 % Gul i PB
Undvik rördragning inom streckmarkerat
område för att underlätta service
Skyddsklenspänning Ø 16
Frånluft Ø 125
Avluft Ø 125
Elektrisk
matning Ø 25
Dockning Ø 16
91 90
A 15
Ställbar 15 – 40
250
45
Min avstånd
10 mm från vägg
Lucka på
båda sidor
Er
f
orderligt utrymme
f
ör
demontering av övre frontlucka
77
B
615
115
C
355
600
2095
440
115
295
A, B och C ska vara 100 % Röd
och 100 % Gul i PB
440
115
295
70
35
40
20
35
Udblæs-
ningsluft
Ø 125
Usugning
fra rum
Ø 125
600
Dansk
70
52
Space required to dismantle the
upper service cover.
Min. distance 10 mm
from the wall
Protective extra low
voltage Ø 16
Exhaust air Ø 125
Extract air Ø 125
Docking Ø 16
Mains supply Ø 25
Cover on both sides
Compression ring
Copper-pipe
Avoid routing pipes within the lined area to
facilitate servicing.
Adjustable 15 - 40

Table of Contents

Related product manuals