EasyManua.ls Logo

Paytec Eagle - Page 15

Paytec Eagle
95 pages
Print Icon
To Next Page IconTo Next Page
To Next Page IconTo Next Page
To Previous Page IconTo Previous Page
To Previous Page IconTo Previous Page
Loading...
15
EXE
MDB SLAVE
MDB SLAVE
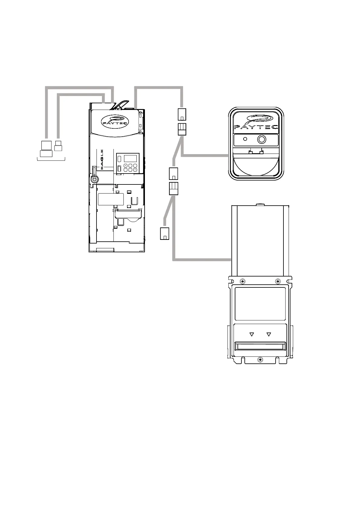
Here below an example of connection of 2 units: OPTO MDB reader + Bill Validator MDB
In such case, the OPTO MDB reader being a double Cashless MDB unit, no more Cashless MDB units can be
connected.
OPTO PIT
MDB
MDB MASTER CABLE

Table of Contents