EasyManua.ls Logo

Peri SKYDECK - 3 recessed panels

Peri SKYDECK
102 pages
Print Icon
To Next Page IconTo Next Page
To Next Page IconTo Next Page
To Previous Page IconTo Previous Page
To Previous Page IconTo Previous Page
Loading...
36
12
129*
x
y
9
9
L
SPH
L
SPH
≤ 0.20
0.25 ≤ 0.40
0.30 ≤ 0.70
0.40 1.15
100 80 60
14 30 58 137
16 26 51 121
18 23 46 108
20 21 41 98
22 19 38 89
24 18 35 82
25 17 33 79
26 16 32 76
28 15 30 71
30 14 28 66
35 12 24 57
40 11 21 50
43 10 20 46
SKYDECK Panel Slab Formwork
Instructions for Assembly and Use – Standard Configuration
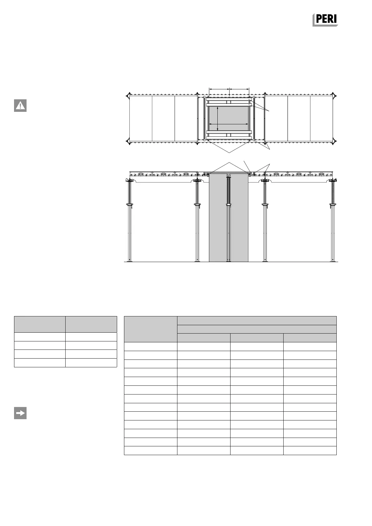
A6 Shuttering around columns
Additional Edge Beam SRT-2 150 (9)
required with:
Permissible width of influence of flat Filler Timber SPH,
maximum deformation l/500
For other slab thicknesses, the values
are interpolated linearly.
Take into account the supporting
direction of the formlining.
Fig. A6.10
Fig. A6.09
3 recessed panels
Maximum column dimensions
x = 138 cm, y = 142 cm.
Secure filler plates with nails!
Install Edge Beam SRT-2 150 (9) vertically,
Edge Beam SRT-2 150 (9*) suspended,
Filler Timber SPH 150 (12) horizontally.
(Fig. A6.09, Fig. A6.10)
Table A6.01
Slab thickness
d [m]
Column side
y [m]
no additional SRT
Slab thickness
permissible width of influence Filler Timber SPH flat e
SPH,flat
[cm]
with span L
SPH
[cm]
Table A6.02
SKYDEKC AuV_ex_791458.indb 36 13.12.16 16:56

Table of Contents

Related product manuals