EasyManua.ls Logo

Peri SKYDECK - Working and safety scaffold

Peri SKYDECK
102 pages
Print Icon
To Next Page IconTo Next Page
To Next Page IconTo Next Page
To Previous Page IconTo Previous Page
To Previous Page IconTo Previous Page
Loading...
55
2.25
1.50
H
B
2,00 3,00
0,90 1,30
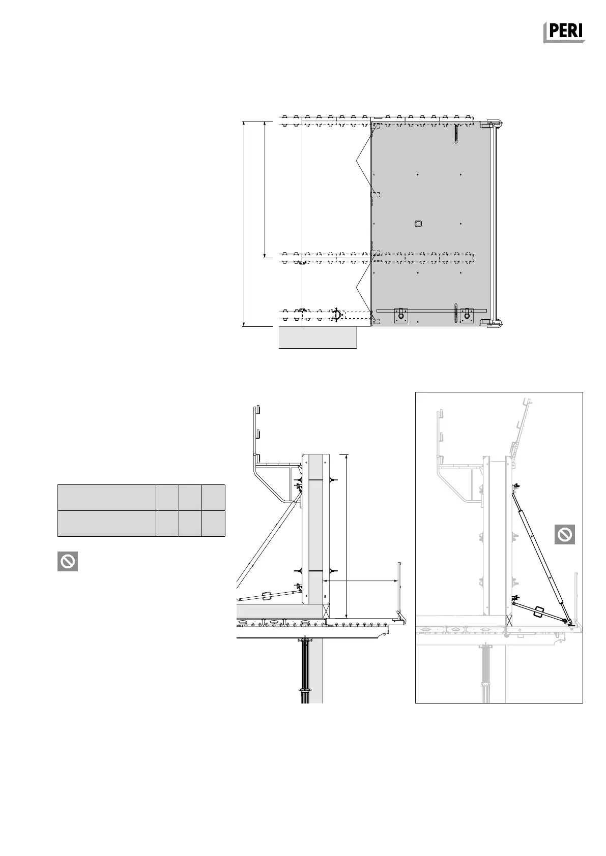
A9 SKYDECK platforms
Working and safety scaffold
Use the SKYDECK Platform SDB 300
for longer slab sections.
Also for corner tables, the Platform SDB
300 can be used instead of the Platform
SDB 150.
Use the Platform SDB 225 as a com-
pensation platform.
The Platform SDB 225 has 4 slides on
the underside. This means the platform
can therefore cantilever to the right or
the left by 75 cm if required. This is nec-
essary to accommodate interruptions
such as columns, offset walls or at an
external wall. (Fig. A9.16)
The various platforms in use form a
working and safety scaffold according
to DIN 4420, Part 1.
With 1.30 m platform width they fulfil
the safety scaffold requirements for a
maximum 3.0 m falling height, which is
required for the construction of sup-
ports or columns. (Fig. A9.17)
Do not assemble push-pull props on the
platform nor store materials!
(Fig. A9.17a)
Take into account the permissible load
of 1.5 kN/m² (150kg/m
2
)!
Fig. A9.16
Fig. A9.17 Fig. A9.17a
DIN 4420 T1, Table 1:
Falling height H [m]
Min. spacing B [m]
to
min.
Slide
Slide
SKYDECK Panel Slab Formwork
Instructions for Assembly and Use – Standard Configuration
SKYDEKC AuV_ex_791458.indb 55 13.12.16 16:57

Table of Contents

Related product manuals