EasyManua.ls Logo

Peri SKYDECK - A8 Cantilevers, Guardrails; Bracing on open building edges to prevent tipping; Cantilevers with Panels SDP; Cantilevers with SKYDECK Platforms SDB

Peri SKYDECK
102 pages
Print Icon
To Next Page IconTo Next Page
To Next Page IconTo Next Page
To Previous Page IconTo Previous Page
To Previous Page IconTo Previous Page
Loading...
42
≤ 54
≤ 50
90°
90°
23
23
24
24
24.1
24.1
39
39
2.25 m
2.25 m
37.5
37.5
45a B
A
45a
45c
45c 45b
≤ 37,5 cm
≤ 37,5 cm
SKYDECK Panel Slab Formwork
Instructions for Assembly and Use – Standard Configuration
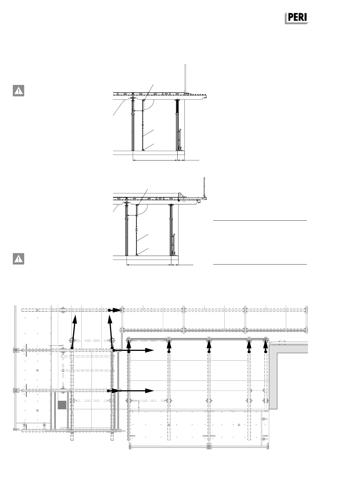
A8 Cantilevers, Guardrails
Bracing on open building
edges to prevent tipping
Horizontal loads must be additional-
ly taken into consideration and
transferred, e.g. with bracing; see
Sec tion A7.
Cantilevers with Panels SDP
Mount Tension Sleeve SAO (39) on
main beam. Distance to inner prop max.
50 cm. Brace using Anchor Chain (23),
Base Plate (24) and Anchor Bolt (24.1).
(Fig. A8.01)
Max. slab overhang: 37.5 cm.
Cantilevers with SKYDECK
Platforms SDB
(Fig. A8.02 + A8.03) See Cantilevers
with Panels SDP.
Corner table:
The Main Beams SLT “A + B” receive
2-fold horizontal load from the wind and
1-fold load from the stopend formwork
pressure. Additional bracing is required.
Fig. A8.03 shows only bracing from
Load Case Tilting.
Take into account Section A9
SKYDECK Platforms!
Fig. A8.03
Components
23 Anchor Chain (permissible ten-
sion force = 3 kN)
24 Base Plate RS
24.1 Anchor Bolt PERI 14/20 x 130
39 Tension Sleeve SAO
45 SKYDECK Platform SDK
Fig. A8.01
Fig. A8.02
SKYDEKC AuV_ex_791458.indb 42 13.12.16 16:56

Table of Contents

Related product manuals