EasyManua.ls Logo

Peri SKYDECK - Corner table (Area I)

Peri SKYDECK
102 pages
Print Icon
To Next Page IconTo Next Page
To Next Page IconTo Next Page
To Previous Page IconTo Previous Page
To Previous Page IconTo Previous Page
Loading...
46
SLT 375 SLT 225
SDB 300SDB 300SDB 150SDB 150
SLT 375
SDB 300 SDB 300 SDB 150 SDB 225
SPKK (20)
SLT 375
SLT 225
IV
II
III
I
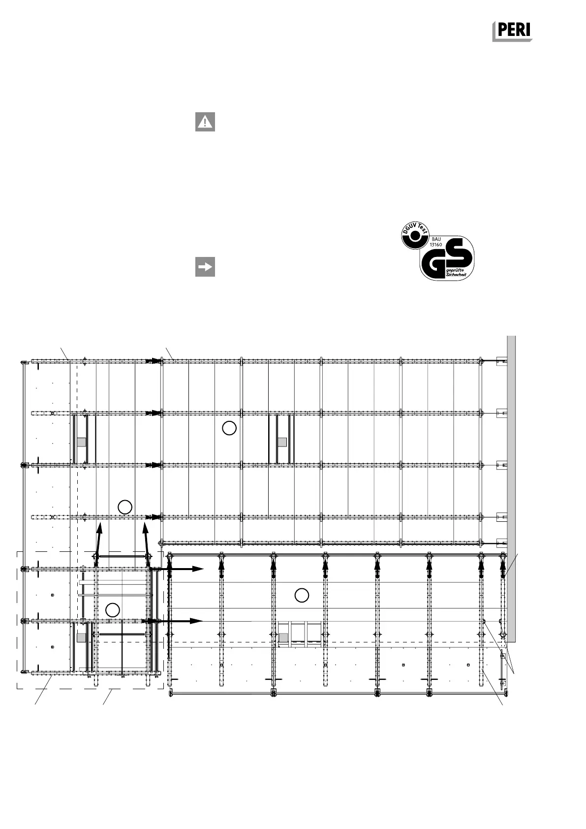
A9 SKYDECK platforms
Overview
The SKYDCK Platform SDB is a prefab-
ricated, foldable scaffold platform for
use as working scaffold following DIN
EN 12811, Load Class 2, with a permis-
sible load of 1.5 kN/m² (150 kg/m²). It
secures the open buiding edges of the
SKYDECK slab formwork.
Assembly of the slab formwork in con-
nection with SKYDECK Platform SDB is
carried out in four areas. ( I – IV)
The sequence must be maintained.
(Fig. A9.01)
Risk of falling!
Ensure that end-to-end side pro-
tection is installed on slabs that
have been completed!
Cantilevers should not have form-
work erected or be stepped on be-
fore being firmly secured with ten-
sion chains.
Work to be carried out by qualified
personnel only!
When using SKYDECK platforms, no
safety scaffold is required for the levels
below.
Fig. A9.01
Corner table
Outer
platform
Inner
platform
SKYDECK Panel Slab Formwork
Instructions for Assembly and Use – Standard Configuration
SKYDEKC AuV_ex_791458.indb 46 13.12.16 16:56

Table of Contents

Related product manuals