EasyManua.ls Logo

Peri SKYDECK - Recessed main beams; Shifting the main beam axis

Peri SKYDECK
102 pages
Print Icon
To Next Page IconTo Next Page
To Next Page IconTo Next Page
To Previous Page IconTo Previous Page
To Previous Page IconTo Previous Page
Loading...
37
11
6
9
9
**
9
6
9
13
**
**
SKYDECK Panel Slab Formwork
Instructions for Assembly and Use – Standard Configuration
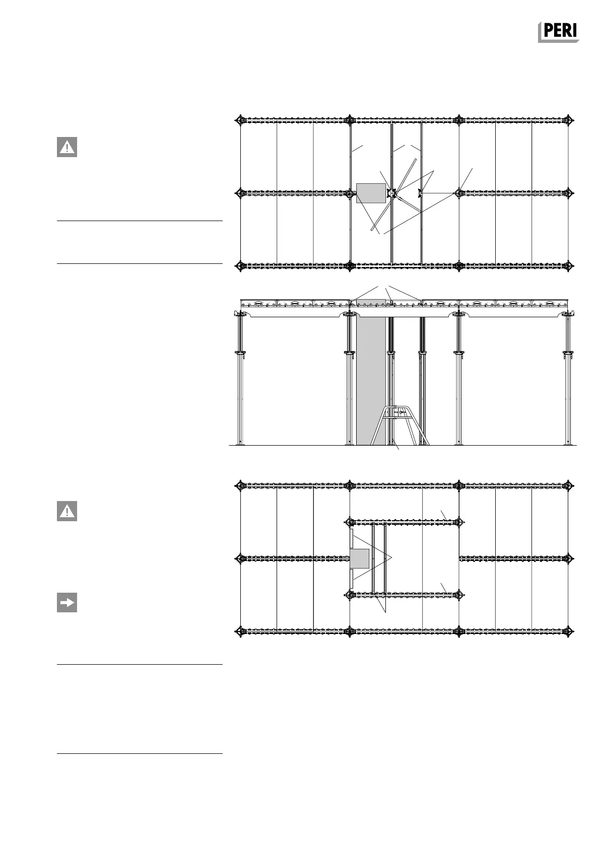
A6 Shuttering around columns
Recessed main beams
Secure filler plates with nails!
Secure props of the Edge Beam
SRT (**) with tripod!
Components
9 Edge Beam SRT-2 150
6 Prophead SSK
11 End Support SSL
Only used if moving the main beam axis
is not desired. (Fig. A6.11, Fig. A6.12)
Additional formlining support depending
on the situation on site.
Shifting the main beam axis
(Fig. A6.13)
Secure Main Beam SLT (**) props
that have been shifted with tripods!
In the area of the box out, screw timber
(13) on the panel as filler support.
Take into account the supporting
direction of the formlining.
Components
6 Prophead SSK
9 Edge Beam SRT-2 150
9* Edge Beam SRT 150, suspended
10 Edge Beam SRT-2 75
11 End Support SSL
12 Filler Timber SPH
13 Timber
Fig. A6.11
Fig. A6.13
Fig. A6.12
Secure props by means of tripod.
SKYDEKC AuV_ex_791458.indb 37 13.12.16 16:56

Table of Contents

Related product manuals