Installation
RES-445 Page 15
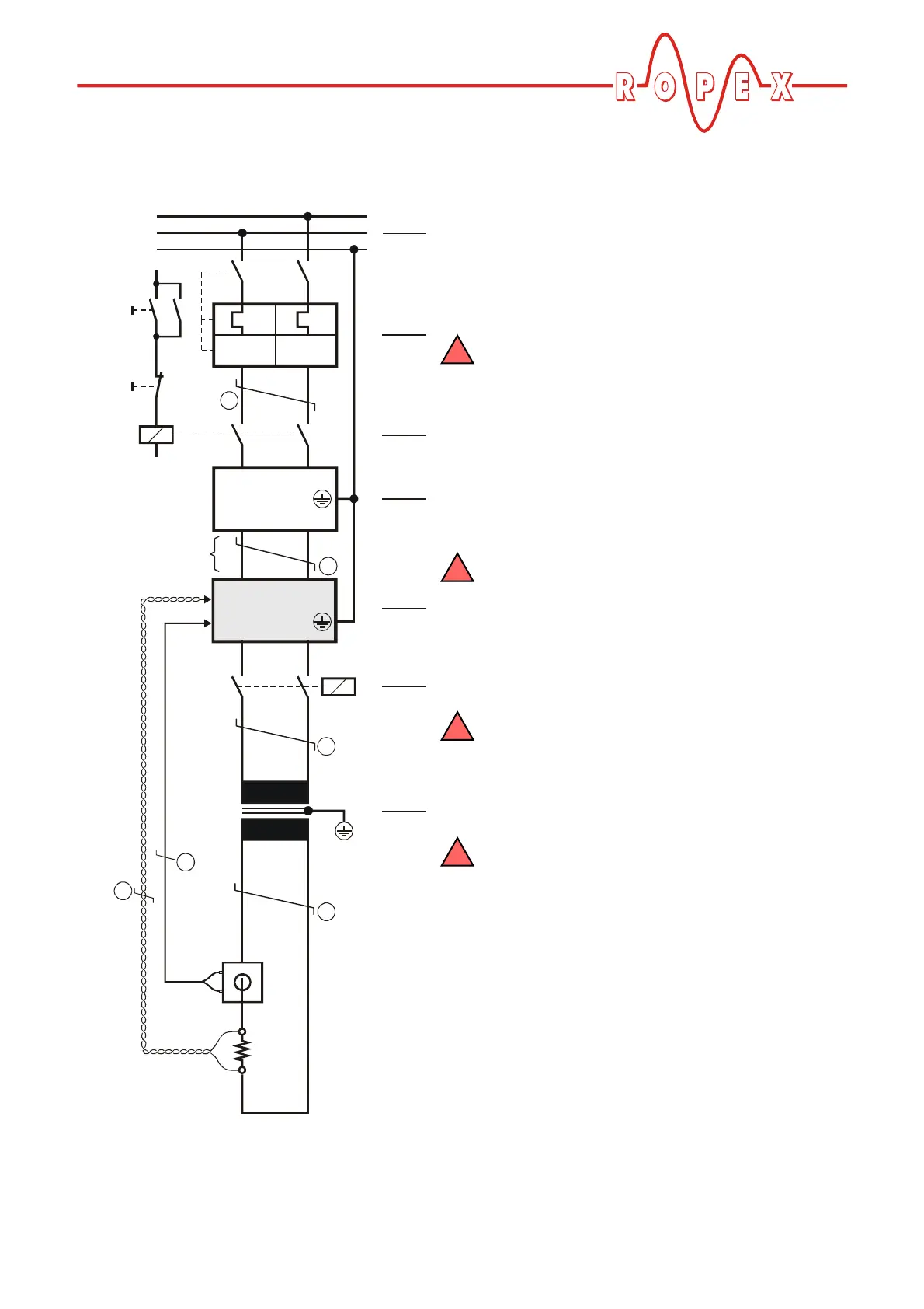
8.3 Power supply
ROPEX
temperature
controller
U
R
I
R
R
PRIM.
U
1
Kb
Ka
SEC.
U
2
LINE
I
>
I
>
LINE
FILTER
3
3
Line
115VAC, 230VAC, 400VAC
50/60Hz
Circuit breaker
Double-pole, C characteristic
( ROPEX Application Report)
Short-circuit protection only.
RESISTRON temperature controller not protected.
Relay Ka
For "HEAT ON - OFF" function (all-pole) or
"EMERGENCY STOP".
Line filter
The filter type and size must be determined according to
the load, the transformer and the machine wiring
( ROPEX Application Report).
Do not run the filter supply wires (line side) parallel
to the filter output wires (load side).
RESISTRON temperature controller belonging to the
4xx Series.
Relay Kb
Load break (all-pole), e.g. in combination with the alarm
output of the temperature controller.
When using a series resistor RV-....-1 the relay Kb
shall be installed.
Impulse Transformer
Designed according to VDE 0570/EN 61558 (isolating
transformer with reinforced insulation). Connect core to
ground.
Use transformers with a one section bobbin. The
power, duty cycle and voltage values must be deter-
mined individually according to the application ( ROPEX
Application Report and "Accessories" leaflet for impulse
transformers).
Wiring
The wire cross-sections depend on the application
( ROPEX Application Report).
Guide values:
Primary circuit: min. 1.5mm², max. 2.5mm²
Secondary circuit: min. 4.0mm², max. 25mm²
These wires must always be twisted (>20/m)
These wires must be twisted (>20/m) if several control
loops are laid together ("crosstalk").
Twisting (>20/m) is recommended to improve EMC.