EasyManua.ls Logo

Seabreeze SHE9H4ZIGX - Outdoor Units; Dual Port

Seabreeze SHE9H4ZIGX
142 pages
Print Icon
To Next Page IconTo Next Page
To Next Page IconTo Next Page
To Previous Page IconTo Previous Page
To Previous Page IconTo Previous Page
Loading...
16
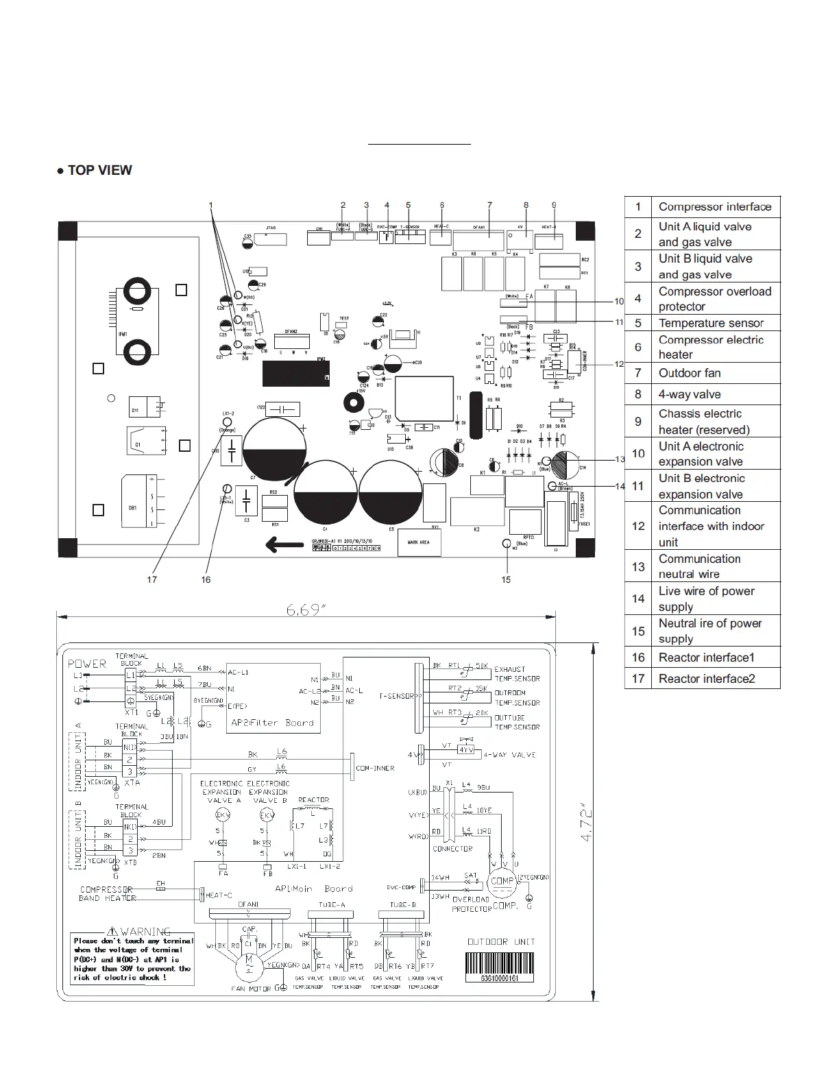
6.2 Outdoor Units
6.2.1 Dual Port
SMZ18H46ZOGX

Table of Contents

Related product manuals