EasyManua.ls Logo

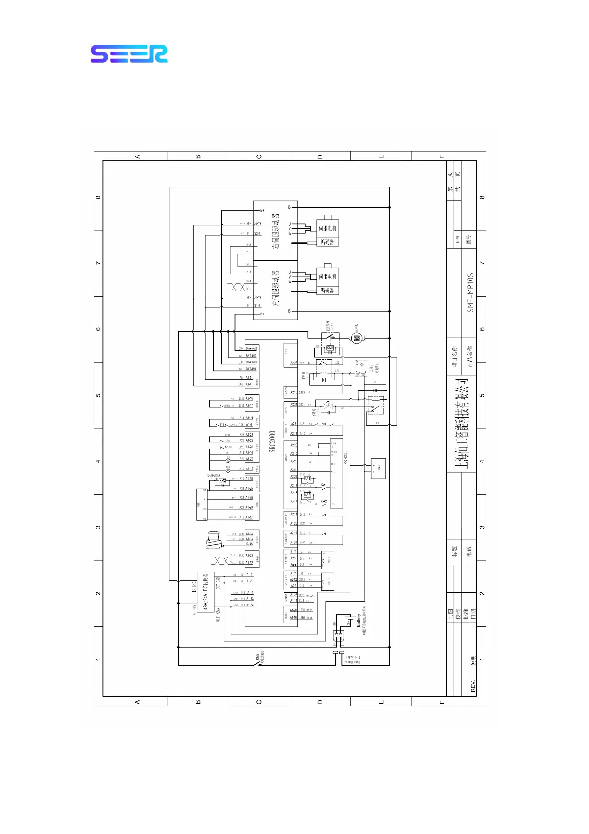
SEER SFL-MP10S - Appendix II Electrical Schematic Diagram of SMF-MP10 S

SEER SFL-MP10S
83 pages
Print Icon
To Next Page IconTo Next Page
To Next Page IconTo Next Page
To Previous Page IconTo Previous Page
To Previous Page IconTo Previous Page
Loading...
Appendix II Electrical Schematic Diagram of SMF-MP10S
SMF-MP10S User guide V1.1 Shanghai Seer Intelligent Technology Corporation 76
Appendix II Electrical Schematic Diagram of SMF-MP10S

Table of Contents