EasyManua.ls Logo

Siemens SINUMERIK 840 - Page 332

Siemens SINUMERIK 840
375 pages
To Next Page IconTo Next Page
To Next Page IconTo Next Page
To Previous Page IconTo Previous Page
To Previous Page IconTo Previous Page
Loading...
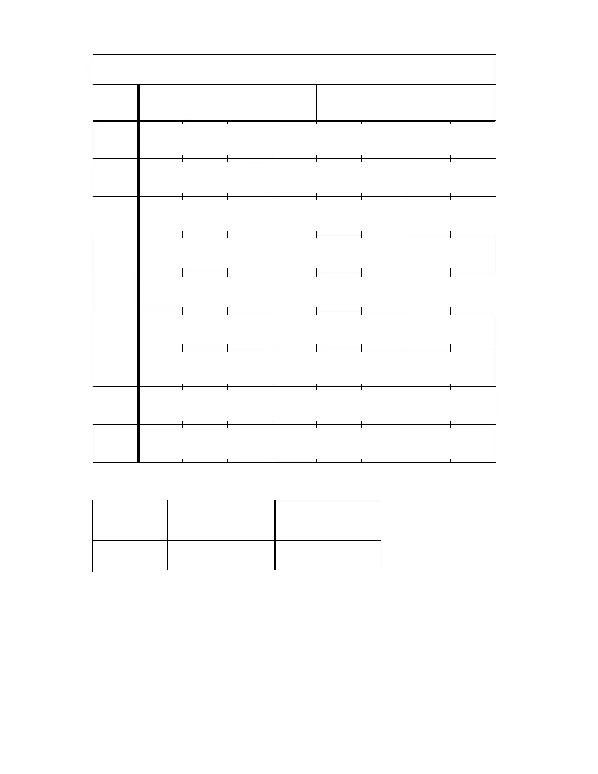
11.92 10 Data Fields
10.1.2 PLC machine data words (DB 61)
Data
word
No.
High-order byte (DL)
Submagazine-specific machine data words for tool management
Bit 15
Low-order byte (DR)
Bit 15
Bit 15
Bit 15
Bit 15
Bit 15
Bit 15
Bit 31
Bit 15
Bit 0
Bit 0
Bit 0
Bit 0
Bit 0
Bit 0
Bit 0
Bit 16
Bit 0
DW 4
m+4
DW 5
m+5
DW 6
m+6
DW 7
m+7
.
.
.
DW 64
m+64
DW 65
m+65
DW 66
m+66
DW 67
m+67
Submagazine 1, initial address (data word number)
Submagazine 1, number of magazine locations (corresponds to number
of data words)
Submagazine 1, allocated TO area
Submagazine 1, number of the assigned magazine
(chained magazine, also background magazine)
Submagazine 16, initial address (data word number)
Submagazine 16, number of magazine locations (corresponds to number
of data words)
Submagazine 16, allocated TO area
Submagazine 16, number of the assigned magazine
PLC
1)
Address m
< Software Version 6.1
Address m
> Software Version 6.1
1
2
2000
2100
2000
2250
_______
1) PLC 2 applies to SINUMERIK 880/880 GA2 only
© Siemens AG 1991 All Rights Reserved 6FC5 197-0AA40-1BP1 10–3
SINUMERIK 840/880 (PJ)

Table of Contents

Other manuals for Siemens SINUMERIK 840

Related product manuals