EasyManua.ls Logo

Siemens Siprotec 7SD600 - Page 132

Siemens Siprotec 7SD600
170 pages
Print Icon
To Next Page IconTo Next Page
To Next Page IconTo Next Page
To Previous Page IconTo Previous Page
To Previous Page IconTo Previous Page
Loading...
' $ ! $!& #$"&&"!    (%& !' $$ !" 


   
  
16
15
15
16
13
14
18
17
17
18
20
20
21
19
19
25
25
26
LED1
Flush mounting case / FLUSH MOUNTING CASE 7SD600*-*EA00-*DA0
Surface mounting case, lateral terminals, SURFACE MOUNTING CASE 7SD600*-*BA00-*DA0
14
13
21
26
30
31
=
30
31
L+
U
=
H
Stromversorgung / POWER SUPPLY
L-
KOMMANDORELAIS/COMMAND RELAYS
K1: AUS-Kommando/TRIP-COMMAND
K2: AUS-Kommando/TRIP-COMMAND
M3: Lockout aktiv/LOCKOUT ACTIVE
M1: Gerät bereit/DEVICE OPERATIVE
7
8
7
8
L+ Diff blo Kdo/DIFF BLO
E1:
9
10
9
10
L+ Lockout Quitt/LOCKOUT RESET
E2:
11
12
11
12
L+ LED-Quit/LED-RESET
E3:
29
28
29
28
A
B
27
27
GND
RS485
1
R
a
Hilfsadernanschluß/
PILOT WIRE TERMINALS
6
5
4
3
6
5
4
3
2
1
R
b
-T1
-T2
I
1
I '
1
ES
LED2
23
23
24
22
22
24
M2. Störung Ader/P-WIRE FAIL
LED1
MELDERELAIS/SIGNAL RELAY
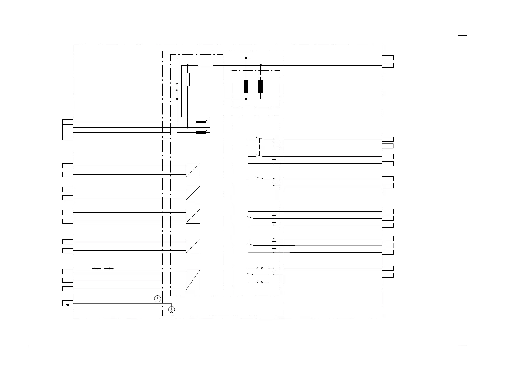
Störschutzkondensatoren an den Relaisausgängen
Keramik, 4,7 nF, >250 V
Iinterference suppression capacitors at relay outputs,
ceramic, 4.7 nF, >250 V
(-K5)
(-K6)
(-K8)
(-K4)
(-K1)
(-K3)
EINGABE/INPUT
2
-BI1
-BI2
-BI3
~
Figure A1 Overview diagram of the differential protection 7SD600*-*B***- und 7SD600*-*E***-

Table of Contents

Related product manuals