EasyManua.ls Logo

Siemens SIRIUS 3RW44 - Soft Starter for Pole-Changing Motor with Separate Windings and 2 Paramerter Sets

Siemens SIRIUS 3RW44
255 pages
To Next Page IconTo Next Page
To Next Page IconTo Next Page
To Previous Page IconTo Previous Page
To Previous Page IconTo Previous Page
Loading...
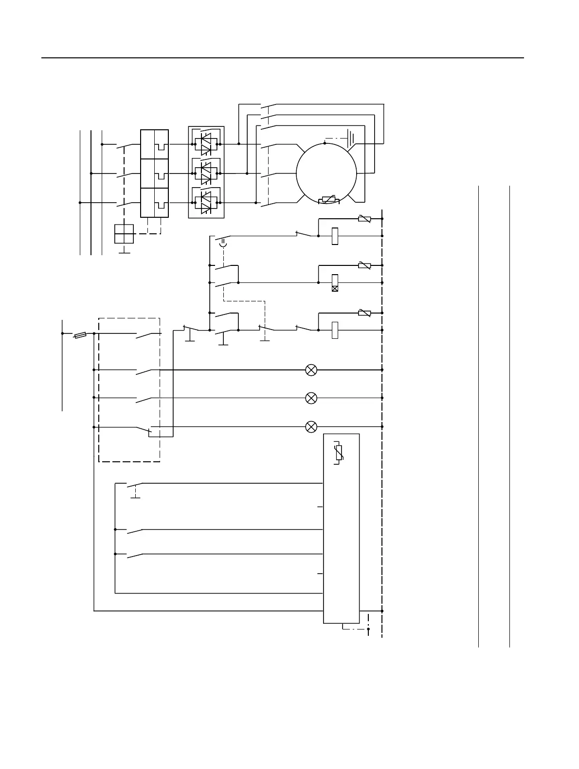
Circuit Examples
SIRIUS 3RW44 System Manual
9-12 GWA 4NEB 535 2195-02 DS 04
9.1.11 Soft Starter for Pole-Changing Motor with Separate Windings and
2 Paramerter Sets
1) For permissible main and control voltage values, refer to Technical Data, Pages 10-8 to 10-12.
Notice
The "Coasting down" stopping mode must be set on the 3RW44.
$
1
3(
3(
/ / , 1
,1 ,1 ,1
7
7
4
)
$
4
4
0
3(
8:
0
a
/
/
/
/ /
/
7 7 7
4




8
$
$
8
$
$
$
$
$
$
$
$
8
$
$
+ + +
4 4 6
8:
9
9
4 4
/
6
6
4 .
4
6
4
. 44
I >> I >> I >>
˽
˽
0RWRUULJKW36
0RWRUULJKW36
,QSXW
WKHUPLVWRUSURWHFWLRQ
1RDFWLRQ
1RDFWLRQ
)DXOW
,QSXW
,QSXW
*URXSHUURU
IL[HG
DOORFDWLRQ
0RWRU
VWRS
6WDUW
ORZ
URWDWLRQDO
VSHHG
6WDUW
KLJK
URWDWLRQDO
VSHHG
0RWRUUXQVDW
KLJKURWDWLRQDOVSHHG
$X[LOLDU\FRQWDFWRUIRU
VZLWFKLQJGHOD\
SLFNXSGHOD\
PV
0DLQFRQWDFWRUIRU
ORZURWDWLRQDOVSHHG
0DLQFRQWDFWRUIRU
KLJKURWDWLRQDOVSHHG
13(9$&

+]
13(9$&

+]
0RWRUUXQVDW
ORZURWDWLRQDOVSHHG
7ULS5HVHW
9'&RXW

5HVHW

Table of Contents

Other manuals for Siemens SIRIUS 3RW44

Related product manuals