EasyManua.ls Logo

Siemens SIRIUS 3RW55 - Page 215

Siemens SIRIUS 3RW55
238 pages
To Next Page IconTo Next Page
To Next Page IconTo Next Page
To Previous Page IconTo Previous Page
To Previous Page IconTo Previous Page
Loading...
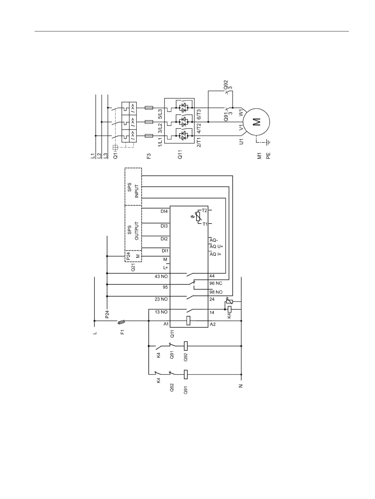
Example circuits
A.3 Special applications
SIRIUS 3RW55 soft starter
Manual, 08/2018, A5E35630887002A/RS-AB/002
215
Wiring for 3RW55 soft starters in inline circuit and stopping function, with DC braking with 2 braking
contactors

Table of Contents

Other manuals for Siemens SIRIUS 3RW55

Related product manuals