EasyManua.ls Logo

Toa RM-200M - Connections to Detect Failures on the Emergency Control Input Lines

Toa RM-200M
105 pages
Print Icon
To Next Page IconTo Next Page
To Next Page IconTo Next Page
To Previous Page IconTo Previous Page
To Previous Page IconTo Previous Page
Loading...
86
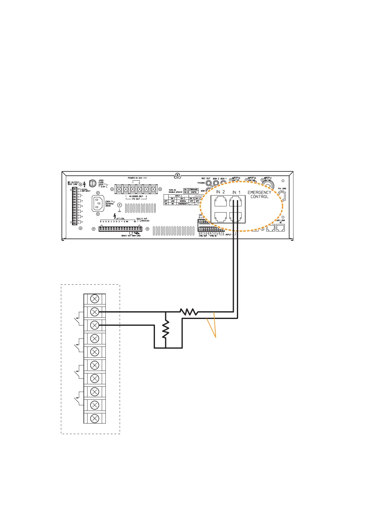
(Fire alarm or other control equipment)
Emergency control input
terminals 1 to 5
Control output terminals of the external device
Both lines can be surveyed.
CTRL IN
COM
4.7 kΩ±5%
4.7 kΩ±5%
VM-3240VA rear
13.5.2. Connections to detect failures on the emergency control input lines
Two types of control methods are available for the Emergency control input in the VM-3000 system: Contact
control input (Emergency control input terminals 1 – 5) and Voltage control input (Emergency control input
terminal 6).
Failures on each control input line can be detected in the following connections.
The control input terminals to be surveyed should be set by the setting software. (Refer to "Surveillance
Settings" in the separate software manual.)
* For the surveillance function, refer to page 33.
[Contact control input terminals (EMERGENCY CONTROL 1 – 5)]
Receive emergency control output (contact output) from external equipment, then reset an emergency
broadcast.
Connect the lines to be surveyed as shown below.

Table of Contents

Other manuals for Toa RM-200M

Related product manuals