EasyManua.ls Logo

Trane Tracer Summit - Page 176

Trane Tracer Summit
272 pages
Print Icon
To Next Page IconTo Next Page
To Next Page IconTo Next Page
To Previous Page IconTo Previous Page
To Previous Page IconTo Previous Page
Loading...
ARCNET Communication
BMTW-SVN01F-EN 161
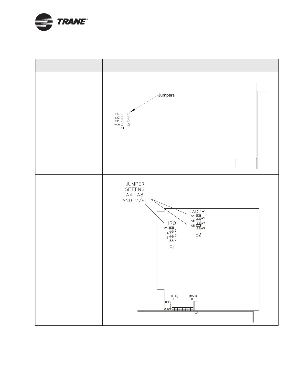
Figure 73. Tracer Summit ARCNET Cards—Version 4 or Later
Description Jumper Settings
Trane Part # 4020 1016
ARCNET three input coaxial
hub
Trane Part # 4020 1017
ARCNET two coaxial/one
fiber-optic hub
Trane Part # 4020 1018
ARCNET one coaxial/two
fiber-optic hub
Jumper Settings
E1—
Time out = Normal
Trane Part # 4020 1021
ARCNET single coaxial input
(main)
Trane Part # 4020 1110
ARCNET single fiber-optic
input (main)
Jumper Settings
E1—
IRQ = 2/9
E2—
I/O base = 02E0
SW1 DIP Switch Settings
See Table 32 on page 162 for
ARCNET address settings.

Table of Contents

Other manuals for Trane Tracer Summit

Related product manuals