EasyManua.ls Logo

Trane Tracer Summit - UCM Communication-Wire Characteristics

Trane Tracer Summit
272 pages
Print Icon
To Next Page IconTo Next Page
To Next Page IconTo Next Page
To Previous Page IconTo Previous Page
To Previous Page IconTo Previous Page
Loading...
Communication-Link Wire
BMTW-SVN01F-EN 55
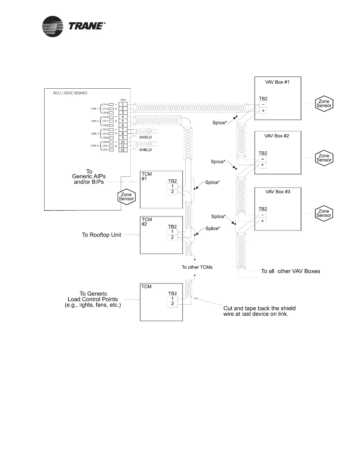
Figure 23. Typical UCM Communication-Link Field Wiring
Figure Note:
If unshielded wire is used (as recommended for Comm5), there is no shield con-
nection.
UCM Communication-Wire Characteristics
(This section applies only to Comm2, Comm3, Comm4 wire.)
UCM communication-link wiring must be low-capacitance, 18-gauge,
shielded, twisted pair with stranded, tinned-copper conductors. For daisy
chain and branch configurations, limit the wire run length to 5,000 ft
(1,524 m).
Wire capacitance (measured in picofarads/foot [pF/ft] or
picofarads/meter [pF/m]) between conductors must be 23±2 pF/ft

Table of Contents

Other manuals for Trane Tracer Summit

Related product manuals