EasyManua.ls Logo

Trane Tracer Summit - Page 240

Trane Tracer Summit
272 pages
Print Icon
To Next Page IconTo Next Page
To Next Page IconTo Next Page
To Previous Page IconTo Previous Page
To Previous Page IconTo Previous Page
Loading...
BCU (BMTS) Components
BMTW-SVN01F-EN 225
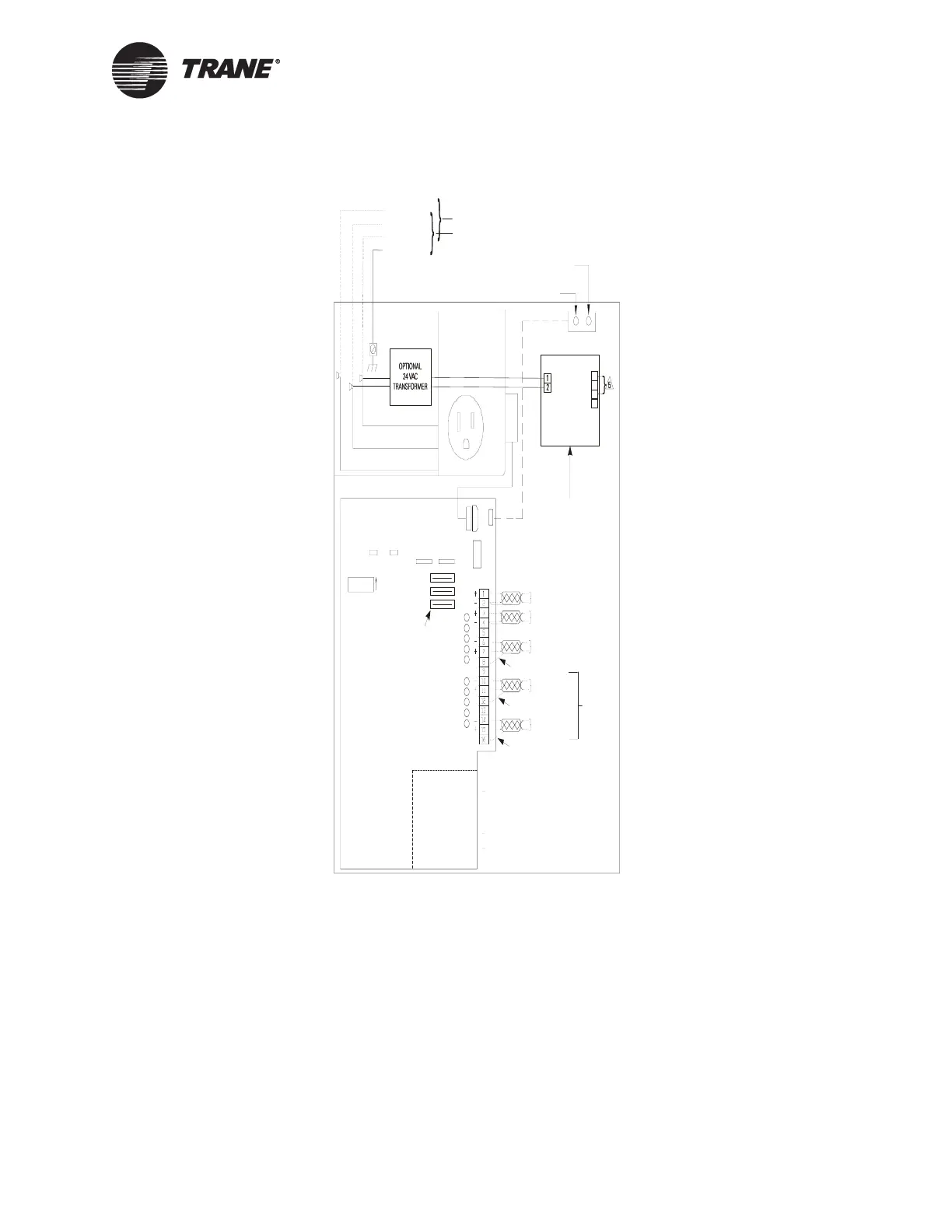
Figure 98. Optional Power Supply Location and Wiring
240 HOT
120/240 HOT
120 NEU
Ground
120 VAC POWER SOURCE
120 VAC SERVICE
RECEPTACLE
RED LED FLASHES FOR ALARM
GREEN LED FLASHES DURING
NORMAL OPERATION
4 AMP MAX
BLACK
ORANGE
WHITE
OFF
ON
OPTION
CARD
SLOTS
P5
P6
P3
P4
BCU LOGIC BOARD
S1
P1
0
1
P2
LED CR16
LED CR17
TX
RX
TX
RX
TX
RX
TX
RX
RS-232
LINK 3
LINK 2
LINK 1
UNIVERSAL INPUT 1
UNIVERSAL INPUT 2
UNIT CONTROLLER
COMMUNICATIONS
LINK 1 (MODULE P7)
UNIT CONTROLLER
COMMUNICATIONS
LINK 2 (MODULE P8)
UNIT CONTROLLER
COMMUNICATIONS
LINK 3 (MODULE P9)
REMOTE COMMUNICATION VIA A TRANE SPECIFIED
INTERNAL MODEM CARD
RS-232 CONNECTION VIA DB-25 CONNECTOR
ARCNET CONNECTION VIA EITHER AN RG-62,
93 OHM COAXIAL CABLE WITH BNC CONNECTOR
AND TERMINATOR OR A 62.5/125 FIBER OPTIC
CABLE WITH ST TYPE CONNECTORS
SHIELD
ON
S2
12345678
TB1
AVAILABLE ON
TRIPLE UCM
COMM. CARD
VERSIONS ONLY
SHIELD
SHIELD
240 VAC POWER SOURCE
UCM
COMMUNICATION
CARD
SLOTS
P7
P8
P9
OPTIONAL 24 VDC
POWER SUPPLY (120 MA)
1
2
3
4
24 VDC
24 VDC
_
+
+
_
TB6
OPTIONAL
POWER SUPPLY

Table of Contents

Other manuals for Trane Tracer Summit

Related product manuals