EasyManua.ls Logo

Urschel COMITROL 1700 - Electrical Schematic (Nema)

Default Icon
233 pages
Print Icon
To Next Page IconTo Next Page
To Next Page IconTo Next Page
To Previous Page IconTo Previous Page
To Previous Page IconTo Previous Page
Loading...
66
PARTS
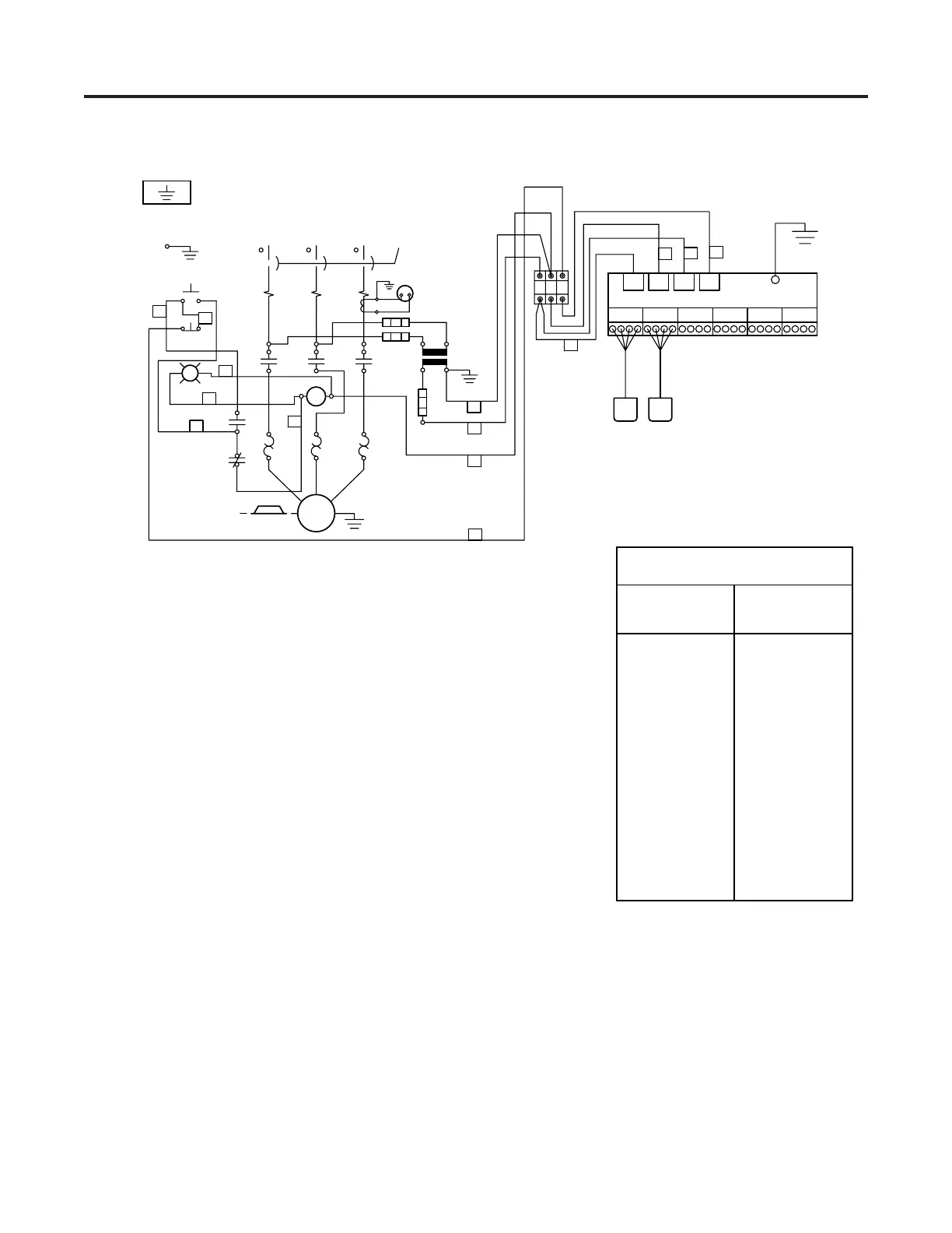
Electrical Schematic (NEMA)
START
123
9.8-10.7 63356 W51
10.8-11.8 63357 W52
11.9-13.0 63358 W53
13.1-14.3 63359 W54
14.4-15.6 63360 W55
15.7-17.0 63361 W56
17.1-18.5 63362 W57
18.6-20.0 63363 W58
20.1-21.6 63364 W59
21.7-23.0 63365 W60
23.1-24.7 63366 W61
24.8-28.5 63287 W62
28.6-30.4 63288 W63
30.5-32.0 63289 W64
10 HP MOTOR
HEATER
AM
STOP
G
T
T
T
1
2
3
L
L
L
1
2
3
0 VOLTS
3
2
115 VOLTS
60578
MOTOR
DOOR
1M
RWBO RWBO
RWBO
RWBO RWBO RWBO
AMPLIFIER
L1 L2 R1 R2
SENSORS, 12 VDC
4
4
2
5
6
6
3
2
1
2
1
3
2
EARTHING
BAR
1
FULL LOAD
AMPS

Table of Contents

Related product manuals