EasyManua.ls Logo

Viessmann Vitocell 360-M - Page 81

Viessmann Vitocell 360-M
144 pages
Print Icon
To Next Page IconTo Next Page
To Next Page IconTo Next Page
To Previous Page IconTo Previous Page
To Previous Page IconTo Previous Page
Loading...
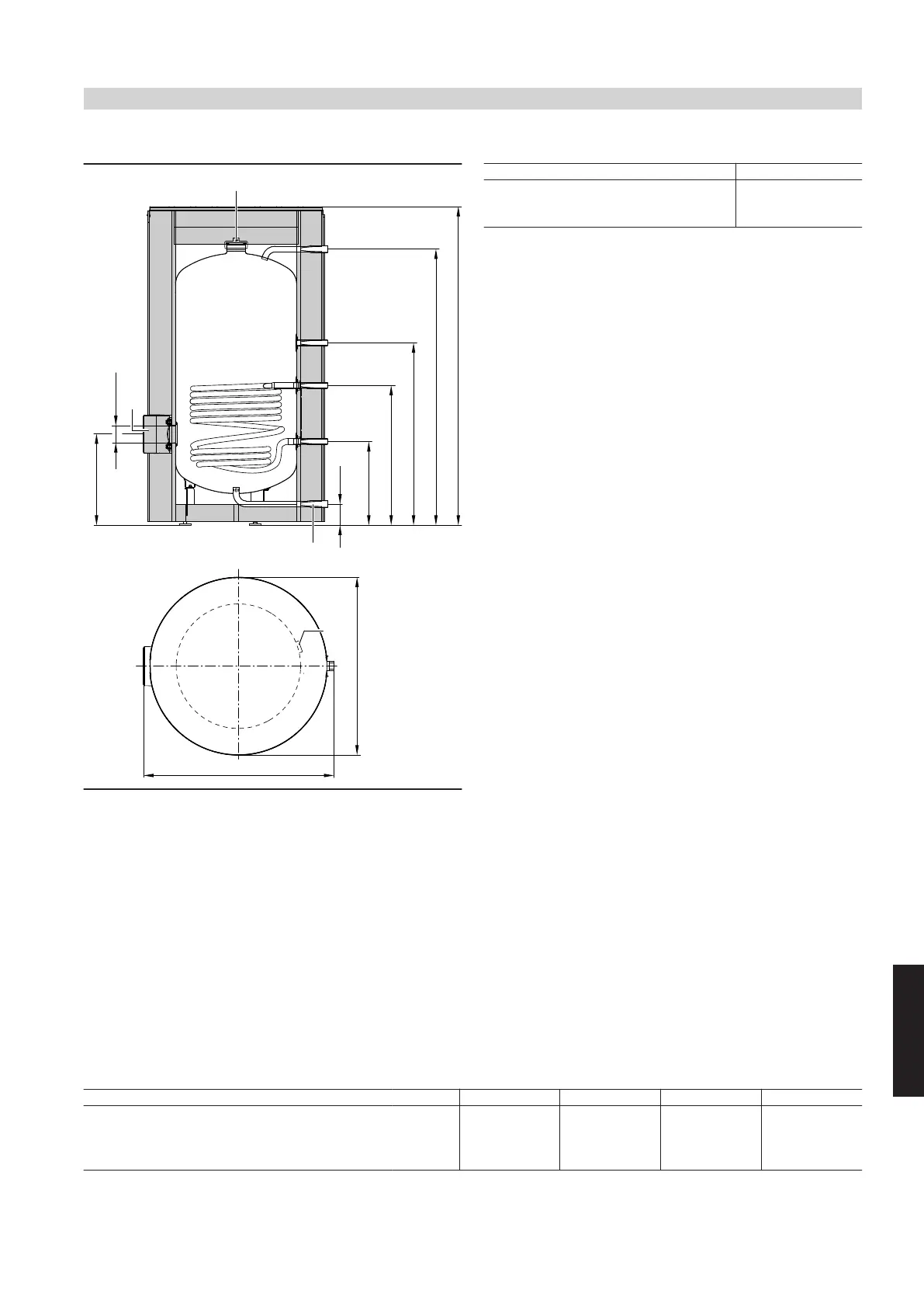
500 l capacity
b
a
SPR
Ø 100
508
HRs
c
KW/E
WW
126
Z
HVs/SPR
494
823
1073
1625
R
Inspection and cleaning aperture
E Drain
HR Heating water return
HV Heating water flow
KW Cold water
R Additional cleaning aperture and immersion heater
SPR Clamping system for securing immersion temperature sensors
to the cylinder jacket. Retainers for 3 immersion temperature
sensors per clamping system.
WW DHW
Z DHW circulation
Cylinder capacity l 500
a mm 1022
b mm 1084
c mm 1852
Performance factor N
L
To DIN 4708.
Cylinder storage temperature T
cyl
= cold water inlet temperature
+ 50 K
+5 K/-0 K
Cylinder capacity l 160 200 300 500
Performance factor N
L
at heating water flow temperature
90 °C 3.5 6.6 10.5 21.5
80 °C 3.1 5.6 10.0 19.5
70 °C 2.3 4.6 9.5 17.0
DHW cylinders
(cont.)
VITOSOL
VIESMANN
81
5822 440 GB
7

Table of Contents

Other manuals for Viessmann Vitocell 360-M

Related product manuals