EasyManua.ls Logo

WEG CFW900 - Frame Size C

WEG CFW900
125 pages
Print Icon
To Next Page IconTo Next Page
To Next Page IconTo Next Page
To Previous Page IconTo Previous Page
To Previous Page IconTo Previous Page
Loading...
English
TECHNICALSPECIFICATIONS
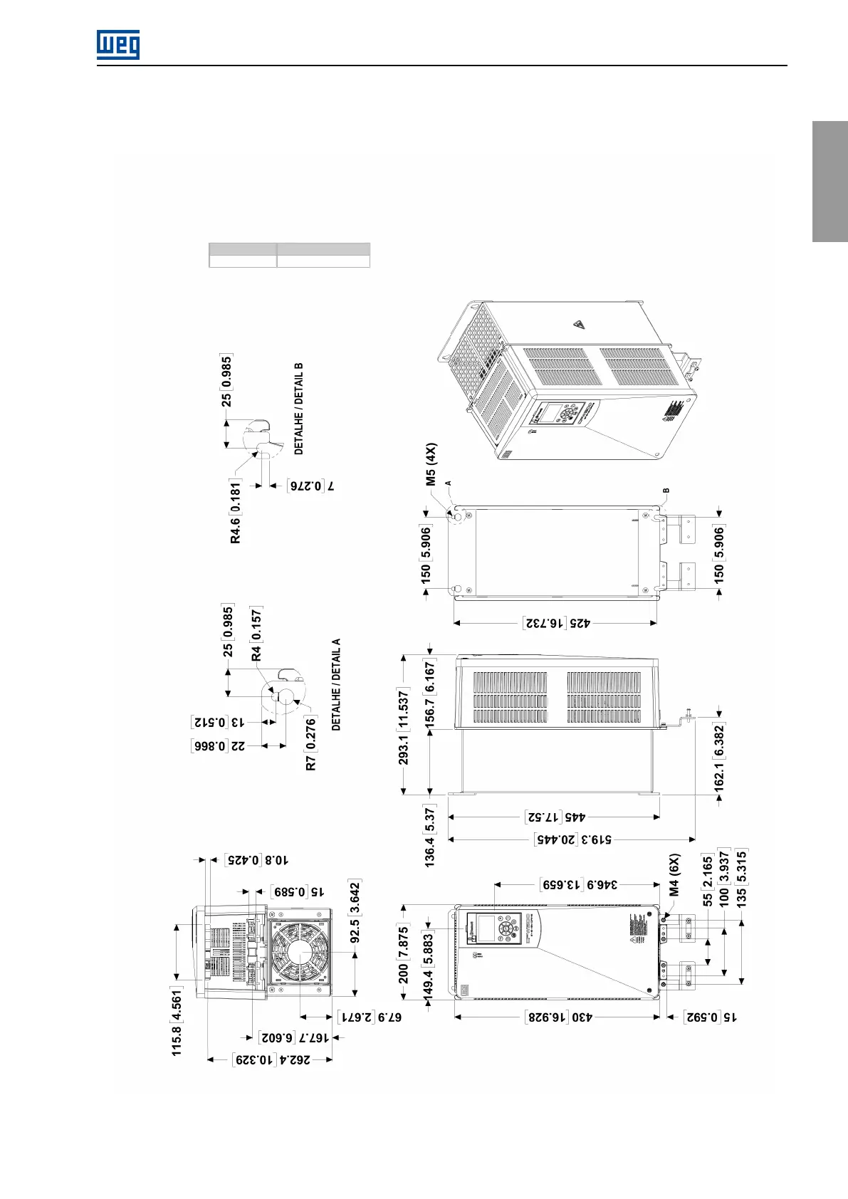
8.4.3FrameSizeC
CFW900C
20,5 / 45,2
Model
Weight (mass) kg/lb
Figure8.7:DimensionsforframeC-mm[in]
CFW900|111

Table of Contents

Other manuals for WEG CFW900

Related product manuals