EasyManua.ls Logo

WEG CFW900 - Page 13

WEG CFW900
125 pages
Print Icon
To Next Page IconTo Next Page
To Next Page IconTo Next Page
To Previous Page IconTo Previous Page
To Previous Page IconTo Previous Page
Loading...
English
GENERALINFORMATION
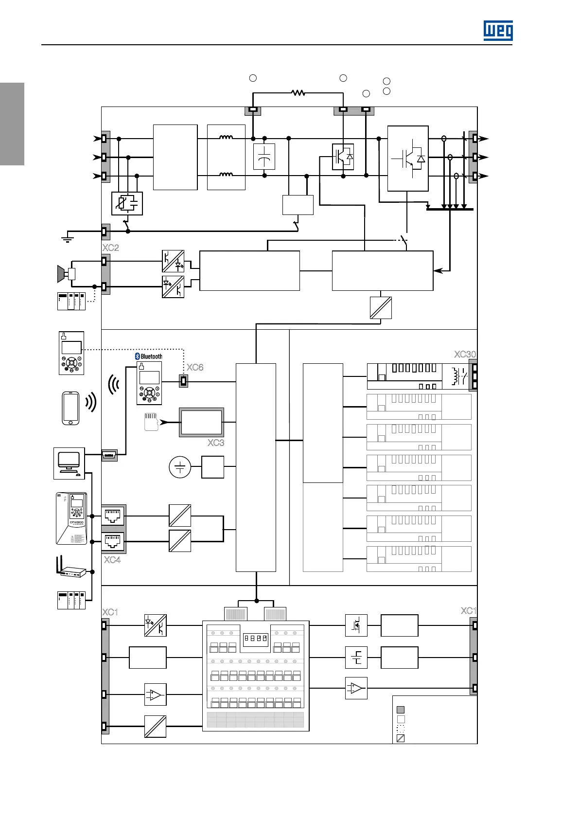
XC2
1
1
2
?
JOG
LOC
REM
A
B
G
F
E
D
C
2
?
JOG
LOC
REM
1
XC1
XC1
XC4
?
JOG
LOC
REM
XC6
XC3
XC30
R/L1
S/L2
T/L3
U/T1
V/T2
W/T3
PowerandControl
DC+
BR
BrakingResistor
DC-
ConnectiontotheDClink
Connectiontothebraking
resistor
InverterCircuit
Rectifier
and
Pre-charge
RFIFilter/
Varistors(*)
Screw
Link
Inductor
Link
Capacitor
RFI
filter
Screw
Braking
IGBT
PE
SP1,SP2
STO1,STO2
Safetymodule:
STO/SS1-tfunctions
ControlandMonitoring
Module
Safety
device
Interface
RemoteHMI
Smartphone
withWEGWPS
PC
CFW900
ED300
CLP
Ethernet
dualport
USB
MicroSD
card
(notincluded)
MicroSD
cardslot
RTC
CR2032
battery
Applicationmoduleand
userinterface
CFW900-4SLOTS
(included)Backplanewith
4expansionslots
CFW900-7SLOTS
(optional)
7expansionslots
Slots:
Accessories
CFW900-REL-01
(included)
DO1-A-NA/NF
DO2-A-NA
DO3-A-NA
Optional
Optional
Optional
Optional
Optional
Optional
DI1-X...DI6-X
External24V
PowerSupply
(backup)
AI1-X
AI2-X
Protection
XC1
CFW900-IOS
Protection
Protection
Lettering
Notincluded
Alternativewiring
Isolation
DO1-X
DO2-X
24V,0,8A
10V,10mA
AO1-X
AO2-X
Connectors
(*)Allmodelshaveabuilt-inRFIfilter.
Figure2.1:BlockdiagramfortheCFW900
6|CFW900

Table of Contents

Other manuals for WEG CFW900

Related product manuals