EasyManua.ls Logo

Wolf Wall Ovens - Cabinet Cutout Dimensions - Side-by-Side

Wolf Wall Ovens
83 pages
Print Icon
To Next Page IconTo Next Page
To Next Page IconTo Next Page
To Previous Page IconTo Previous Page
To Previous Page IconTo Previous Page
Loading...
Installation Information
WWaallll OOvveennss
2-8
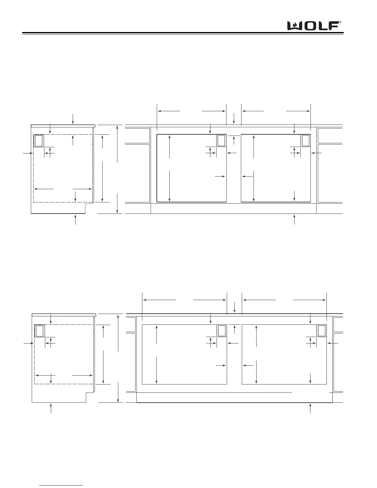
CABINET CUTOUT DIMENSIONS
Side-by-Side Wall Oven
27
3
/16"
(691)
E
5"
(127)
4"
(102)
4
3
/4" min (121)
24" min
(610)
E
5"
(127)
ELECTRICAL
LOCATION IN
ADJACENT RIGHT
SIDE CABINET
4"
(102
)
28
1
/2"
(724)
30" OVEN CUT-OUT
27
3
/16"
(691)
4
3
/4"
min (121)
E
5"
(127)
4"
(102)
28
1
/2"
(724)
30" OVEN CUT-OUT
27
3
/16"
(691)
3
3
/4" min
(95)
7
1
/2"
(191)
3
3
/4"
min (95)
36" (914)
STANDARD
FLOOR TO
COUNTER
HEIGHT
NOTE: Dimensions in parentheses are in millimeters .
24
1
/16"
(611)
E
5"
(127)
4"
(102)
24" min
(610)
E
5"
(127)
34
1
/2"
(876)
36" OVEN CUT-OUT
24
1
/16"
(611)
E
5"
(127)
4"
(102)
34
1
/2"
(876)
36" OVEN CUT
-OUT
3
3
/4" min (95)3
3
/4" min (95)
7
1
/2"
(191)
24
1
/16"
(611)
ELECTRICAL
LOCATION IN
ADJACENT RIGHT
SIDE CABINET
4"
(102
)
36" (914)
STANDARD
FLOOR TO
COUNTER
HEIGHT
7
3
/4" (197) rec
4
3
/4"
(121) min
7
3
/4" (197) rec
4
3
/4" (121) min
NOTE: Dimensions in parentheses are in millimeters .
Figure 2-14. Undercounter Cutout Dimensions and Electrical Placement for SO30
Figure 2-15. Undercounter Cutout Dimensions and Electrical Placement for SO36

Table of Contents

Related product manuals