EasyManua.ls Logo

YASKAWA E-II Series - Connection to Host Controller; Example of Connection to MP2200;MP2300 Motion Module SVA-01

YASKAWA E-II Series
341 pages
Print Icon
To Next Page IconTo Next Page
To Next Page IconTo Next Page
To Previous Page IconTo Previous Page
To Previous Page IconTo Previous Page
Loading...
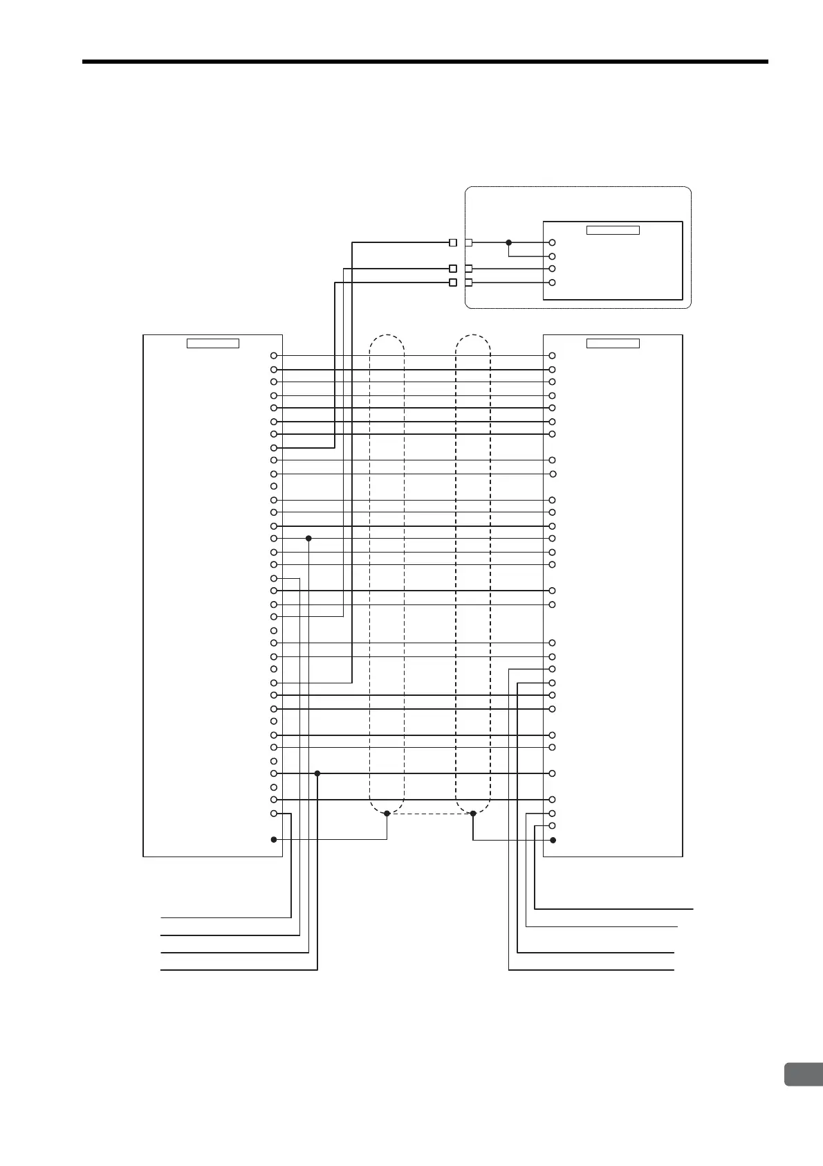
11.2 Connection to Host Controller
11-7
11
Appendix
11.2 Connection to Host Controller
11.2.1 Example of Connection to MP2200/MP2300 Motion Module SVA-01
SGDM/SGDH SERVOPACK
AO_0 (NREF)
PAL
PCL
AI_0
(VTG)
0 V (For 24V)
DO_2 (PCON)
DO_3
+24 V
DI_2
(ZERO/HOME LS)
SG
PA
PC
SG
AO_1
(TREF)
0 V (For 24V)
DO_4
DI_3
(P-OT)
DI_0 (SVALM)
SEN (5V)
DO_5 (SEN for VS866)
PBL
AI-GND
0 V
(For 24V)
DO_1 (ALMRST)
+24 V
DI_5
(EXT/DEC)
SG
AI_1
(TMON)
PB
SG
AO-GND
0 V
(For 24V)
DO_0
DI_4
(N-OT)
DI_1 (SRDY)
1
2
3
4
5
6
7
8
9
10
11
12
13
14
15
16
17
18
19
20
21
22
23
24
25
26
27
28
29
30
31
32
33
34
35
36
SG2
V-REF5
PA33
/PA34
PC19
/PC20
SG6
T-REF9
ALM-32
CN1/CN2
/C-SEL
(Control mode switch)
41
CN1
SVA-01
P-OT42
+24V IN47
ALM+31
ZERO/HOME LS input
P-OT input
N-OT input
EXT/DEC input
TGON- (/BRK-)28
SG10
SEN4
BAT-22
BAT+21
PB35
/PB36
SG1
TGON+ (/BRK+)27
/ALM-RST44
/S-ON40
N-OT43
Brake interlock output (+)
Battery for absolute encoder (0V)
Battery for absolute encoder (3.6V)
Hood FG
Brake interlock output (-)
/S-RDY+29
/P-CL
(Depending on the user setting)
45
/N-CL
(Depending on the user setting)
46
Standard analog input
Standard analog input
Analog input ground
GND4
GND3
Analog monitor 1
(torque reference monitor)
2
1
CN5
SGDM / SGDH
MP2200 / MP2300
Analog monitor 2
(speed reference monitor)
Cable for analog monitor
(JZSP-CA01)
Black
Black
White
Red
/S-RDY-30
FG ޓ Shell
(SV ON)
Artisan Technology Group - Quality Instrumentation ... Guaranteed | (888) 88-SOURCE | www.artisantg.com

Table of Contents

Other manuals for YASKAWA E-II Series

Related product manuals