EasyManua.ls Logo

YASKAWA E-II Series - Surge Absorber

YASKAWA E-II Series
341 pages
Print Icon
To Next Page IconTo Next Page
To Next Page IconTo Next Page
To Previous Page IconTo Previous Page
To Previous Page IconTo Previous Page
Loading...
5 Specifications and Dimensional Drawings of Cables and Peripheral Devices
5.5.9 Surge Absorber
5-22
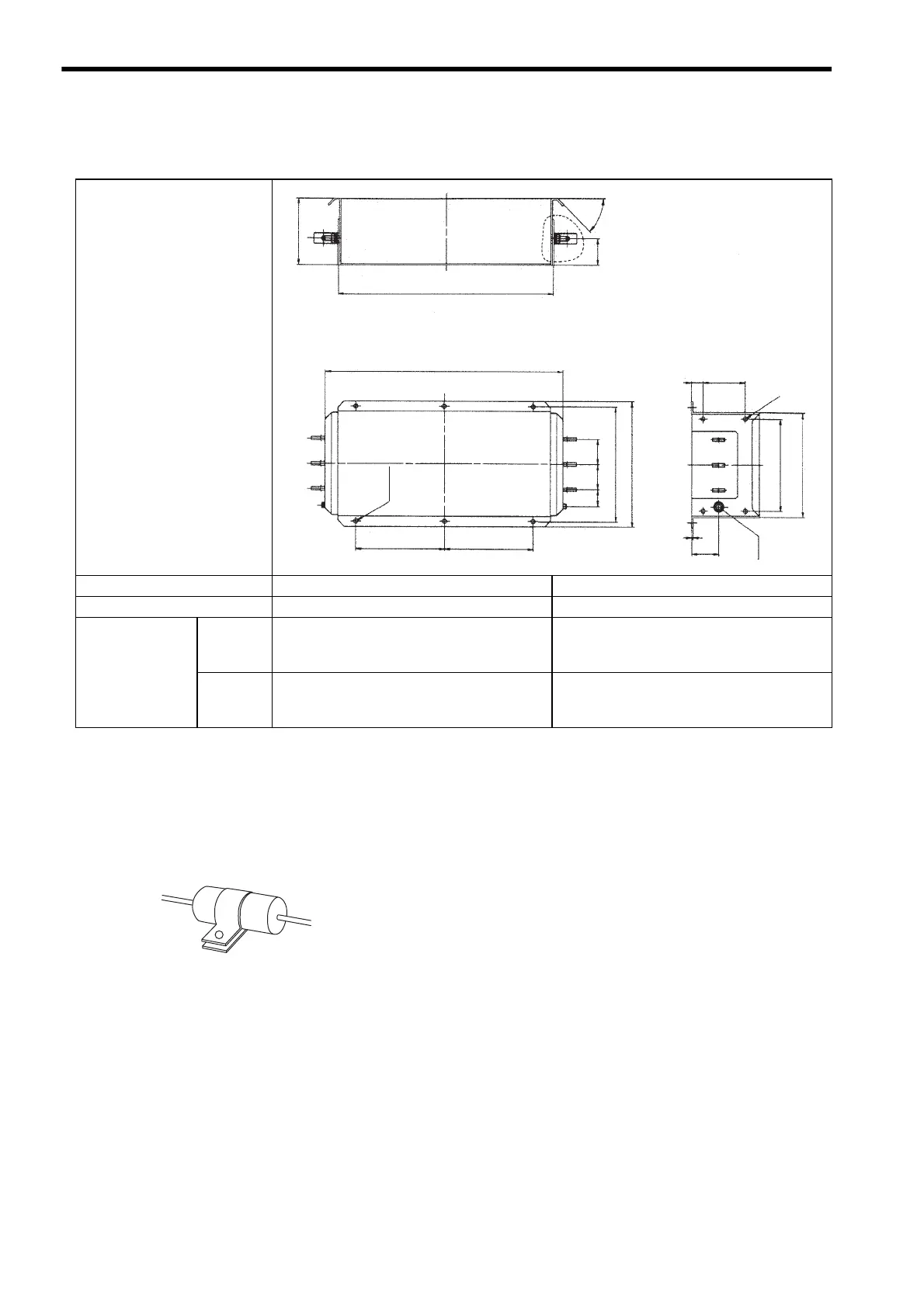
(3)
Model:
FN359P-250-99, FN359P-300-99
5.5.9 Surge Absorber
When using a servomotor with holding brake, install a surge absorber near the brake coil to prevent the power
supply noises. The surge absorber handled by Okaya Electric Industries Co., Ltd. is recommended.
(a) Model: CR50500BL (sold as Spark Quencher)
(b) Specifications
External Dimensions
(mm)
Model
FN359P-250-99 FN359P-300-99
Specifications
AC480 V, 250 A AC480 V, 300 A
Applicable
SERVOPACK
Three-
phase
200 V
SGDM-3GADB
SGDH-3GAEB
Three-
phase
400 V
SGDH-4EDEB
SGDH-5EDEB
SGDH-9ZDEB
8 × M5
mounting holes
100 ± 0.5
27 ± 0.2
160
±
±
±
±
±
±
±
±
1
516 1.5
64 2
564 1.5
210 0.5 210 0.5
40 ± 0.3
60 ± 0.5 60 ± 0.5
275 0.5
300 1
±
±
220 0.5
250 1
3 ± 0.2
64 ± 1
M12
±
45q5q
φ9 ± 0.2
Power supply: 250 VAC
Capacitance: 0.5 μF ± 20%
Resistance: 50 Ω(1/2 W) ± 30%
Artisan Technology Group - Quality Instrumentation ... Guaranteed | (888) 88-SOURCE | www.artisantg.com

Table of Contents

Other manuals for YASKAWA E-II Series

Related product manuals