EasyManua.ls Logo

YASKAWA varispeed G7 CIMR-G7B series - Enclosed Wall-Mounted Inverters [NEMA1 (Type 1)]

YASKAWA varispeed G7 CIMR-G7B series
495 pages
Print Icon
To Next Page IconTo Next Page
To Next Page IconTo Next Page
To Previous Page IconTo Previous Page
To Previous Page IconTo Previous Page
Loading...
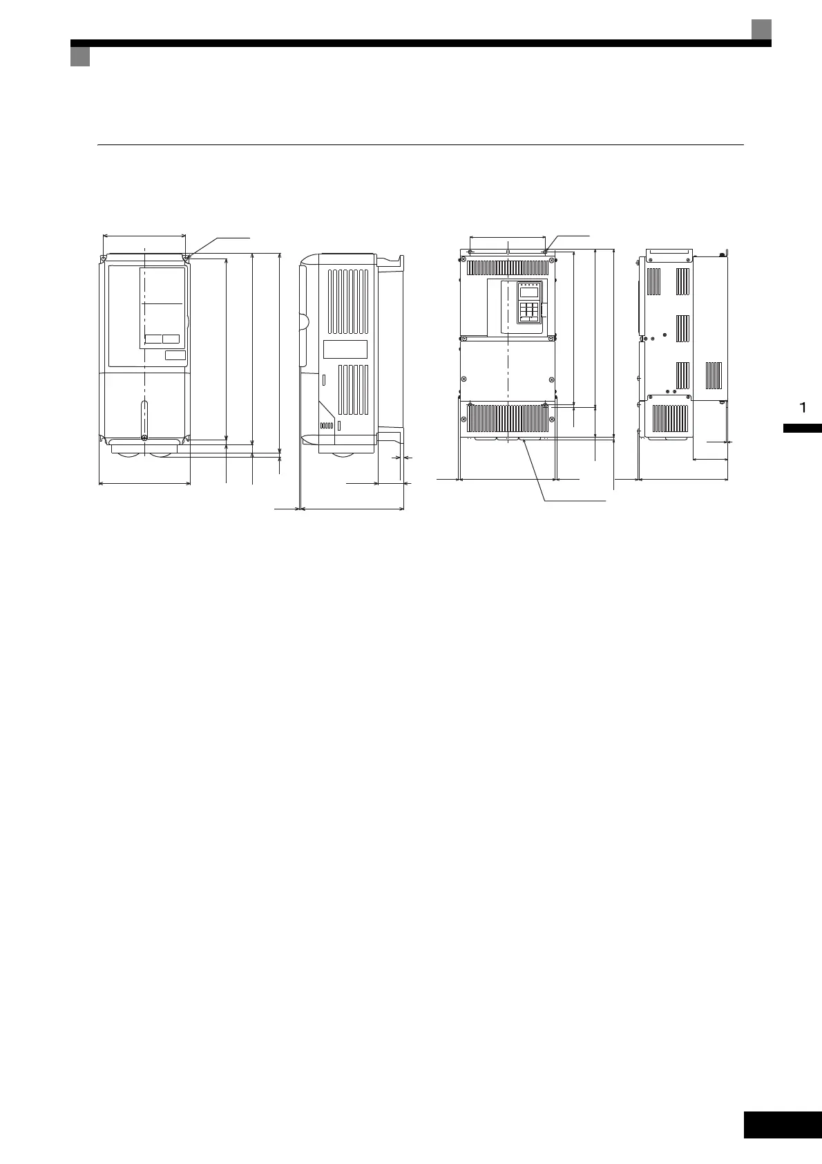
Exterior and Mounting Dimensions
1-7
Enclosed Wall-mounted Inverters [NEMA1 (Type 1)]
Exterior diagrams of the Enclosed Wall-mounted Inverters [NEMA1 (Type 1)] are shown below.
Fig 1.7 Exterior Diagrams of Enclosed Wall-mounted Inverters
W
W1
3
H1H2
D
H0
D1
H3
4 H
4-d
t1
200 V Class Inverters of 18.5 to 75 kW
400 V Class Inverters of 18.5 to 160 kW
W
W1
H3
H0
H1
H2
D1
D(5)
4-d
t1
(5)*(5)*
H
Grommet
Max.10
200 V/400 V Class Inverters of 0.4 to 15 kW
* (7.5) for 200 V Class Inverters of 30 to 75 kW or 400 V
Class Inverters of 55 to 160 kW.

Table of Contents

Related product manuals