EasyManua.ls Logo

YOKOGAWA STARDOM FCN-RTU - Page 112

YOKOGAWA STARDOM FCN-RTU
226 pages
Print Icon
To Next Page IconTo Next Page
To Next Page IconTo Next Page
To Previous Page IconTo Previous Page
To Previous Page IconTo Previous Page
Loading...
<5. Function Test>
TI 34P02K35-02E
Jun. 6, 2018-00
For analog output
For analog output, the conversions are similar to those of analog input but are
performed in the reverse direction.
Example:
Outputs MV value of NPAS_PID 4-20mA or 1-5V electrical signal
NPAS_AO_ANLG (standard analog output POU) is used for output
processing
(1)
NPAS_PID
MV value
(2) Conversion by NPA_AO_ANLG
(3)
Conversion
by I/O
module
(4) Output electrical signal
(5)
Valve
opening
Value of device label variable
4-2 0 mA 1-5 V
Hexadecimal Decimal
16#0000
0
-25%
0 mA
0 V
0%
16#1000
4096
0%
4 mA
1 V
0%
25%
16#2000
8192
25%
8 mA
2 V
25%
50%
16#3000
12288
50%
12 mA
3 V
50%
75%
16#4000
16384
75%
16 mA
4 V
75%
100%
16#5000
20480
100%
20mA
5 V
100%
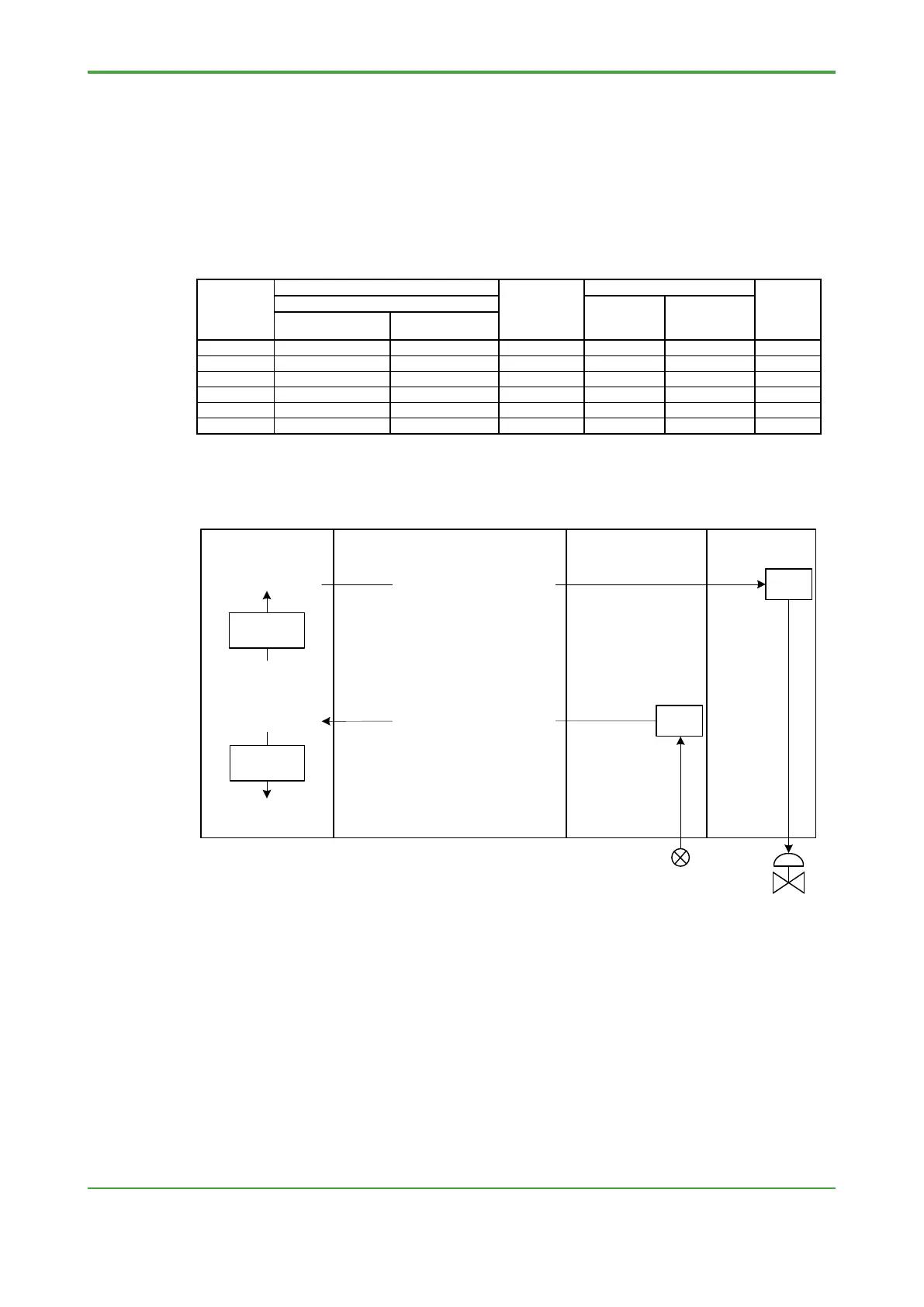
The figure below shows the data flow for the above analog input/output.
The figure shown is for FCN but applies similarly to FCJ.
D/A
conv.
Electrical signal
(5) Analog input value
0 - 200 l/m
FCN
CPU module I/O module I/O module
(2) Electrical signal
4 - 20mA
1 - 5 V
(1) 0 - 200 l/m
A/D
conv.
Device label
variable
NPAS_AI_
ANLG
(1) Analog output value
0 - 100 %
Device label
variable
NPAS_AO
_ANLG
(2) NPAS_AO_ANLG converts
engineering volume data into
16#1000 - 16#5000 data
(4) NPAS_AI_ANLG
converts 16#1000 -
16#5000 data to
engineering volume data
(3) Converts electrical
signal into 16#1000
- 16#5000 data
(3) Converts
16#1000
-16#5000
data into
electrical
signal
(4) Electrical
signal
4 - 20mA
1 - 5 V
16#1000 to 16#5000 data
16#1000 to 16#5000 data
(5) 0 - 100 %

Table of Contents

Related product manuals