EasyManua.ls Logo

Allen-Bradley 160-DN2 - Page 58

Allen-Bradley 160-DN2
116 pages
To Next Page IconTo Next Page
To Next Page IconTo Next Page
To Previous Page IconTo Previous Page
To Previous Page IconTo Previous Page
Loading...
Publication 0160-5.18 - June 2003
6-20 Using 160-DN2 with DeviceNet Scanner
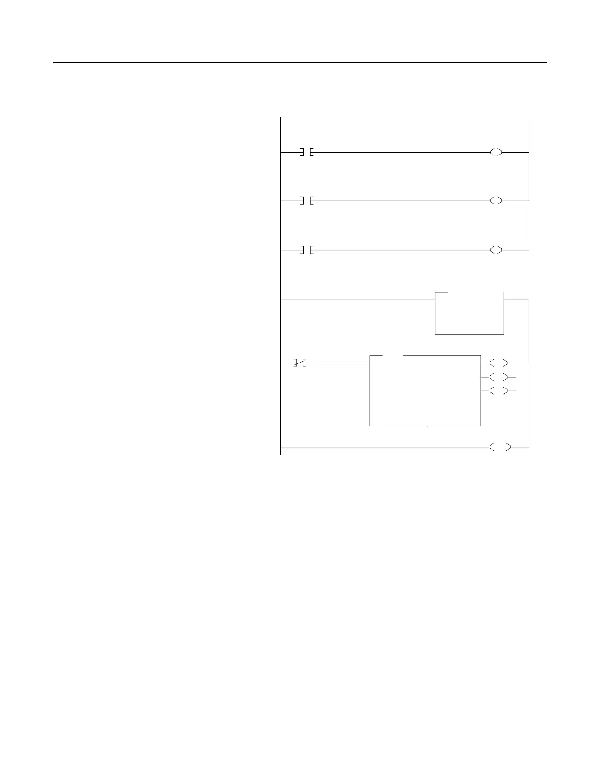
Using I/O Messaging (Continued) Figure 6.15
Example PLC-5 Ladder Logic Program (Continued)
0007
12
N10:1
2
Bulletin 160
JOG
Command Bit
0008
13
N10:1
3
Bulletin 160
CLEAR FAULT
Command Bit
0009
MOV
Move
Source N21:0
0<
Dest N10:2
0<
Bulletin 160
REFERENCE
Command Word
0010
BT20:1
EN
EN
DN
ER
BTW
0011
END
Operator Input
Drive Jog
Command Bit
Operator Input
Drive Clear Faults
Command Bit
I:000
I:000
Block Transfer Write
Module Type Generic Block Transfer
Rack 000
Group 0
Module 0
Control Block BT20:1
Data File N10:0
Length 62
Continuous No
11
N10:1
0
Bulletin 160
STOP
Command Bit
Operator Input
Drive Stop
Command Bit
I:000
0006
The Block Transfer Write in this rung sends the drive
command data to the scanner and out to the drive via
the DeviceNet network.

Table of Contents

Related product manuals