EasyManua.ls Logo

Allen-Bradley SLC 500 Series - Paper Drilling Machine Operation Overview

Allen-Bradley SLC 500 Series
694 pages
Print Icon
To Next Page IconTo Next Page
To Next Page IconTo Next Page
To Previous Page IconTo Previous Page
To Previous Page IconTo Previous Page
Loading...
Publication 1747-RM001G-EN-P - November 2008
Application Example Programs G-3
Paper Drilling Machine
Operation Overview
Undrilled books are placed onto a conveyor taking them to a single spindle
drill. Each book moves down the conveyor until it reaches the first drilling
position. The conveyor stops moving and the drill lowers and drills the first
hole. The drill then retracts and the conveyor moves the same book to the
second drilling position. The drilling process is repeated until there are the
desired holes per book.
Book Drilling Machine
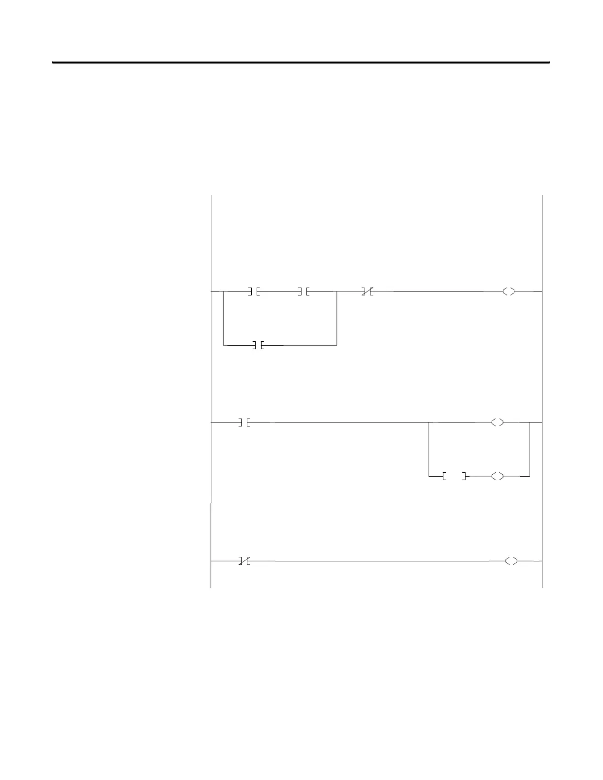
The following ladder logic will start a conveyor in motion when the START button is pressed.
There are conditions that must be met before the conveyor will start.
The drill must be in it's fully retracted position (home) and the drill bit must not be past its
maximum useful life.
The conveyor will stop if the stop button is pressed or if the drill life is exceeded.
0000
I:1
6
1746-IA16
Start
Button
I:1
5
1746-IA16
Drill Home
Limit Switch
B3:0
0
Machine Run
Latch
I:1
7
1746-IA16
Stop
Button
B3:0
0
Machine Run
Latch
The following rung will control the Activate Drill Motor and Conveyor.
0001
B3:0
0
Machine Run
Latch
O:3
1
1746-OA16
Drill Motor
On
OSR
B3:0
1
L
O:3
0
1746-OA16
Conveyor
Start/Stop
The following rung will stop the conveyor if any conditions exist that unlatch the "Machine RUN Latch" bit.
0002
B3:0
0
Machine Run
Latch
U
O:3
0
1746-OA16
Conveyor
Start/Stop

Table of Contents

Other manuals for Allen-Bradley SLC 500 Series

Related product manuals