EasyManua.ls Logo

Ammann ASC 70 - Hydraulic System Diagram - Electro-Hydraulic Cab and Bonnet Lifting

Ammann ASC 70
184 pages
Print Icon
To Next Page IconTo Next Page
To Next Page IconTo Next Page
To Previous Page IconTo Previous Page
To Previous Page IconTo Previous Page
Loading...
170 ASC70
3.8. Annexes
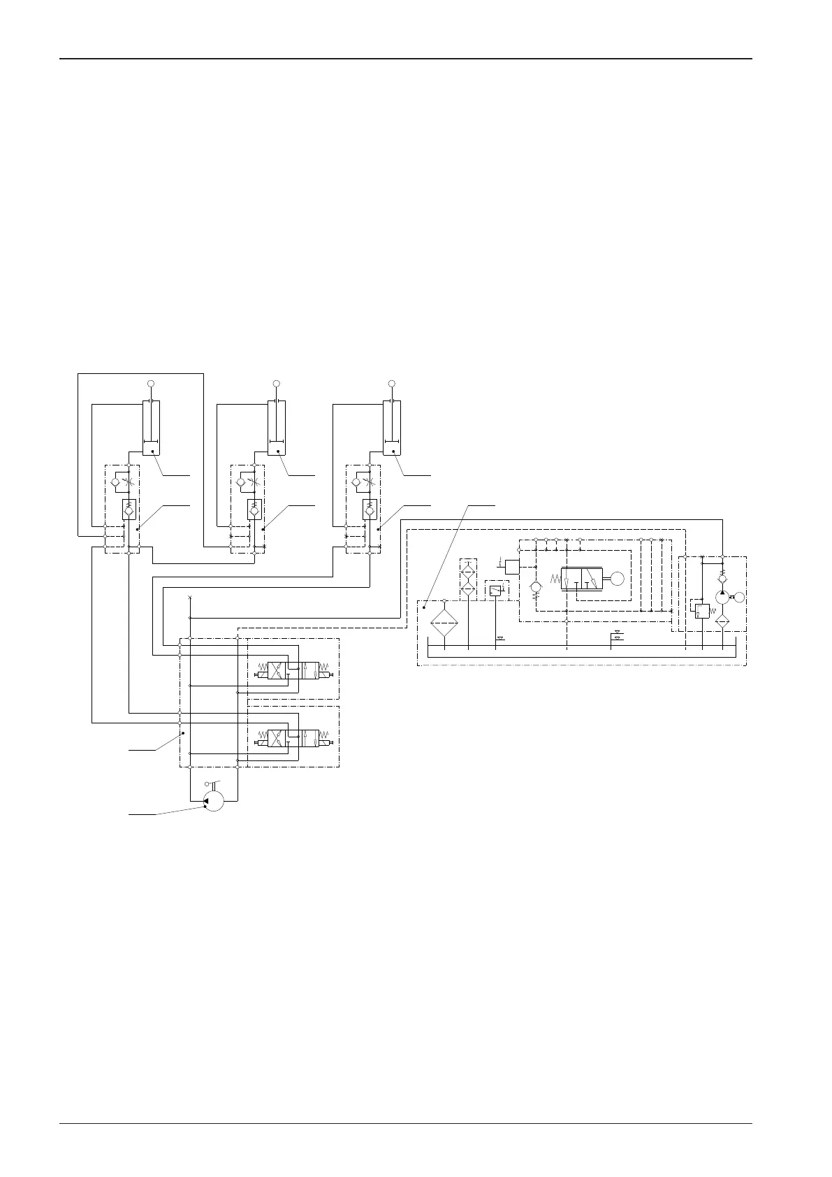
3.8.5. Hydraulic system diagram - electro-hydraulic cab and bonnet lifting
Legend:
1 - Hydraulic tank
2 - Lifting block
3 - Hand pump
4 - Fluid motor for cab lifting
5 - Fluid motor for bonnet lifting
6 - Hydraulic lock
T
P
M
80
Dn6
24 V
0,5 kW
M
60
1,9
5 bar
100
A2
A11
X3
X2
X1
A1
Dn6
Dn6
Dn6
Dn6
A1
X1
X2
X3
A11
A2
A2
A11
X3
X2
X1
A1
Dn6
40/22-320
Right uid motor
Left uid motor
CAB LIFTINGBONNET LIFTING
25/18-320
25/18-320
Dn6
16
P T
TP
A1
B1
B2
A2
Dn6
Dn6
Dn6
Dn6
Dn6
Dn6
Dn6
°C
55°C40°C
°C
325204en
2
3
4
66
5 5
6 1

Table of Contents

Other manuals for Ammann ASC 70

Related product manuals