EasyManua.ls Logo

Atlantic CALYPSO - Dimensioni; Scaldacqua Verticale Su Piedistallo 270 L

Atlantic CALYPSO
Print Icon
To Next Page IconTo Next Page
To Next Page IconTo Next Page
To Previous Page IconTo Previous Page
To Previous Page IconTo Previous Page
Loading...
145145
IT
Avvertenze Installazione Utilizzo
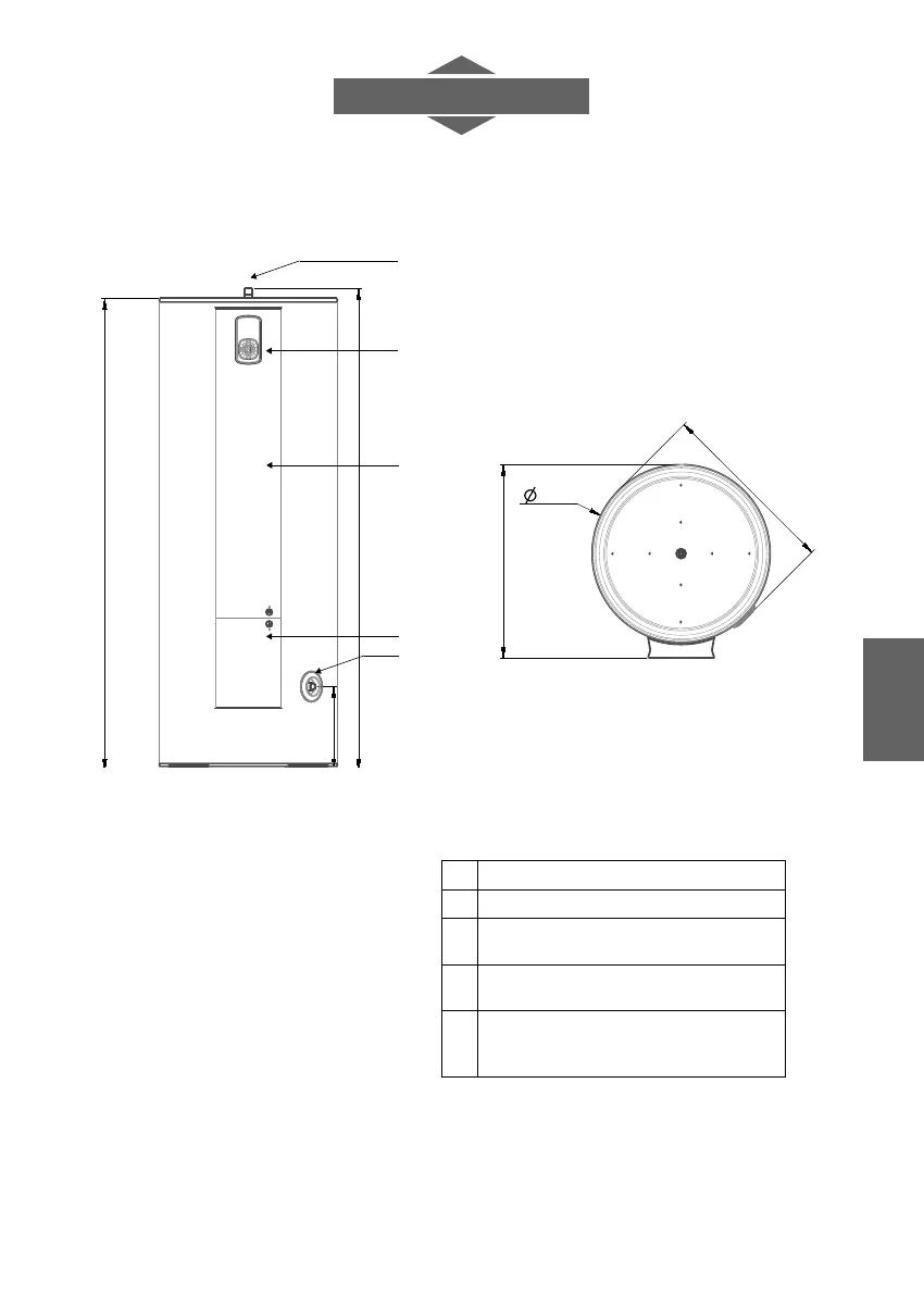
2. Dimensioni
2.1. Scaldacqua verticale su piedistallo 270 l
1586
1618
281
617
600
651
Presa acqua calda 3/4"
Presa acqua fredda 3/4"
Scatola collegamento elettrico e frigo-
rifero (ingresso: 3/8", uscita 1/4") ;
Schermo di regolazione; posizione
della sonda serbatoio alto
Posizione boost e sicurezza mecca-
nica; posizione della sonda pozzetto

Table of Contents

Related product manuals