EasyManua.ls Logo

Atlantic CALYPSO - Dimensions; Vertical Floor-Standing Water Heater, 270 L

Atlantic CALYPSO
Print Icon
To Next Page IconTo Next Page
To Next Page IconTo Next Page
To Previous Page IconTo Previous Page
To Previous Page IconTo Previous Page
Loading...
8787
EN
Warnings
Installation
Use
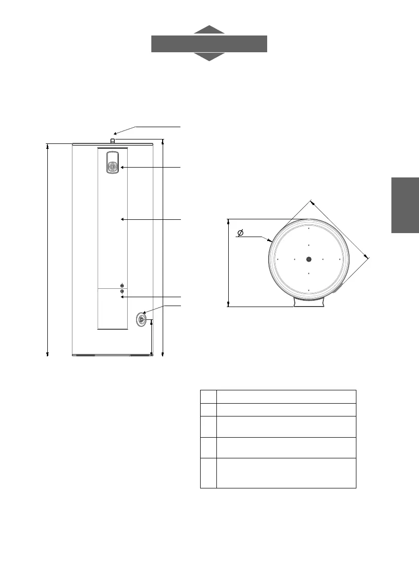
3. Dimensions
3.1. Vertical oor-standing water heater, 270 l
1586
1618
281
617
600
651
3/4" hot water branch connection
3/4" cold water branch connection
Electrical connection box & refrigerant
connection (inlet: 3/8", 1/4" outlet);
Control screen; position of the display
tank sensor
Electric backup & mechanical safety
device location; position of middle tank
sensor

Table of Contents

Related product manuals