EasyManua.ls Logo

auer HRC70 17 - TECHNICAL DATA AND FROST PROTECTION; HRC70 Heat Pump Technical Data

auer HRC70 17
84 pages
Print Icon
To Next Page IconTo Next Page
To Next Page IconTo Next Page
To Previous Page IconTo Previous Page
To Previous Page IconTo Previous Page
Loading...
- INSTALLER HIGHTEMPERATURE ENERGY EFFICIENT HEAT PUMP MANUAL -
52
A1.2 - HRC
70
Pilot
A2 - Technical data
A2.1 -HRC
70
Heat Pump
HRC
70
20 HRC
70
25
Single
phase
151201
Three
phase
151211
Single
phase
151261
Three
phase
151221
Nominal heat output
19.5 kW 24 kW
Heat output at +7/+35°C
in normative conditions
10,3 kW 10,3 kW
Power consumption at +7/+35°C
in normative conditions
2,5 kW 2,5 kW
COP at +7°/+35°C
4,1 4,1
Heat output at -7/+70°C
13 kW 15.5 kW
Max. temperature
R290 refrigerant
1.2 kg 1.5 kg
Outdoor air temperature range
Power supply
230V mono 400V tri 400V tri 400V tri
Maximum start-up current
35 A 13 A 15A 18 A
Soft starter
included no no included
Main circuit breaker
40 A 16 A 16 A 20 A
Min. power cable width
3 x 10mm² 5 x 4mm² 5 x 4 mm² 5 x 6mm²
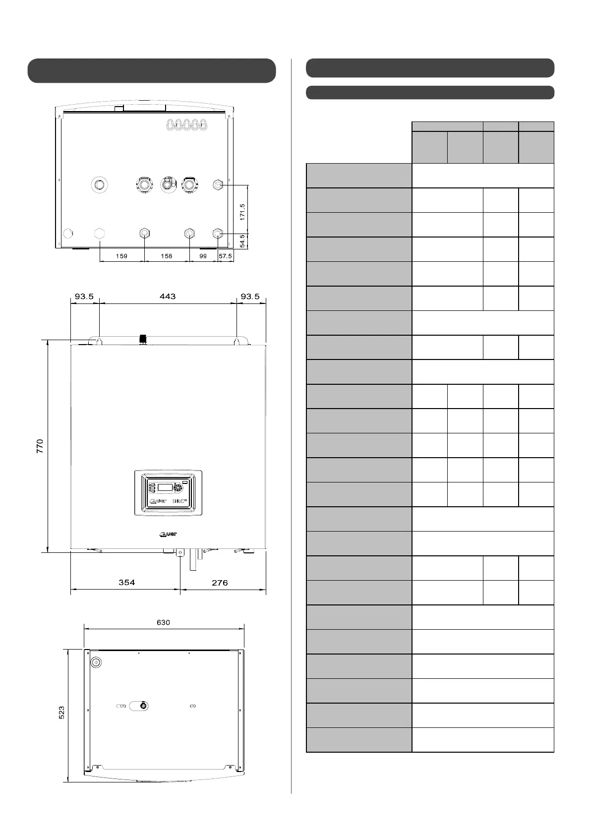
Main body
Dimensions (H x L x D)
Weight without water
245 kg 265 kg
Nominal water flow rate
1550 L/h 1850 L/h
Hydraulic connection
Maximum hydraulic pressure
Ø condensates drainage pipe
Air flow rate
Adjustable silent blocks
Noise level
Power stage 1 / 2 / 3
26 / 34 male
Monobloc moulded heat pump
with hydraulic connection
3.1 bar
Noise level at 1m 50 / 54 / 58 dB(A)
3000 to 7000 m
3
/ h
1,69 kW
4,25
20 / 25 mm
1.5 kW
1.2 kg
70°C
included
-20°C à +40°C
steel
1660mm x 1035mm x 523mm
245 kg
1350 L/h
HRC
70
17
7,2 kW
16.7 kW

Table of Contents

Related product manuals