EasyManua.ls Logo

auer HRC70 17 - HRC70 Pilot Technical Data; Frost Protection Measures

auer HRC70 17
84 pages
Print Icon
To Next Page IconTo Next Page
To Next Page IconTo Next Page
To Previous Page IconTo Previous Page
To Previous Page IconTo Previous Page
Loading...
- INSTALLER HIGHTEMPERATURE ENERGY EFFICIENT HEAT PUMP MANUAL-
53
A3 - Frost protection
A2.2 - HRC
70
Pilot
Single
phase
Three
phase
Power supply
400V three phase
adaptable
230V single phase
Decoupling tank
60 L
Dimensions (H x L x D)
740mm x 630mm x
530mm
Weight without water
55 kg
Hydraulic connection
26 / 34 female
Back-up sources
Integrated
electrical
0 to 6kW three phase or
single phase
Boiler
control possible
Max. current consumption
30 A 10 A
Current protection fuse
32 A 16 A
Min. power cable diametre
3 x 6mm² 5 x 2.5mm²
Max. water pressure
2.5 bar
In cases where the HRC
70
Heat Pump cannot run (outdoor
temperature outside the operating range) if a back-up source
is authorised to run (boiler or electrical) it will automatically
be protected from frost and ice because the circulator pump
will run and extract heat from the heating circuit, which has its
temperature maintained either by the HRC
70
Pilot electrical back-
up or by boiler back-up.
The water temperature remains at 5°C or over.
In all cases the piping must be properly insulated.
Underground piping should also be installed within protective
guttering.
However, in case of installation without a back-up source or the
Heat Pump or Pilot being switched o during the winter period
(e.g: stopping accidentally, use in a second home etc...), it will be
necessary to provide additional protection against frost and ice.
Apply glycol to the heating circuit (with a minimum concentration
of 25% glycol) or make sure you have the hydraulic circuit
draining measures in place for the HRC
70
Heat Pump and its
accessories, as explained below.
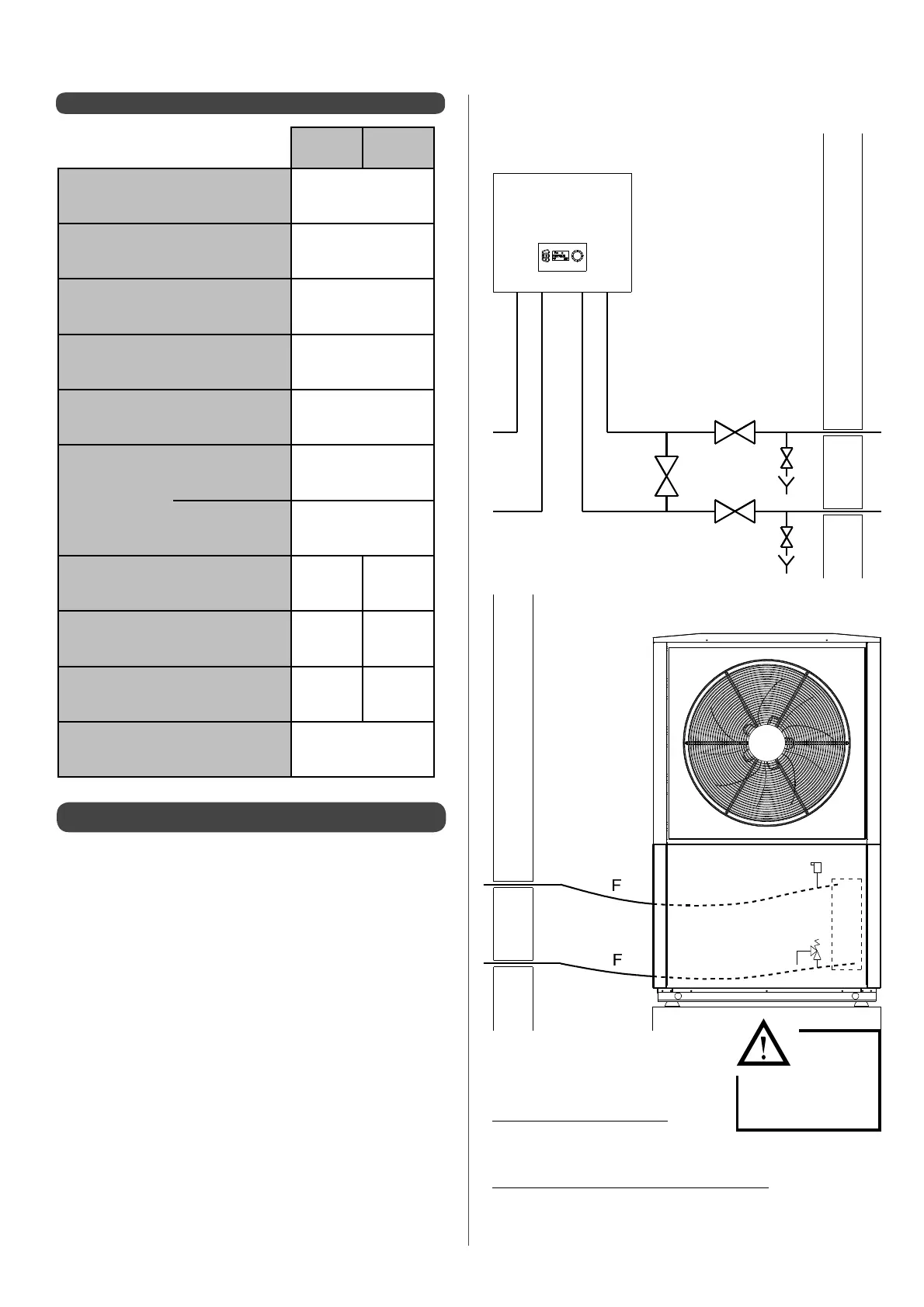
When running normally:
V1 - V2 and V4 are closed
V3 and V5 are open
In case of being switched o in winter:
V3 and V5 are closed
V1 - V2 and V4 are open
Diagram for draining equipment
V1 - V2 : Draining valves
V3 - V4 - V5 : Isolating valves
70
70
V3
V5
V4
V1
V2
70
Ensure
that
the HRC
70
Heat
Pump is drained
HRC
70
Pilot
HRC
70
Heat Pump

Table of Contents

Related product manuals