EasyManua.ls Logo

Avidsen V250 - Page 180

Avidsen V250
Print Icon
To Next Page IconTo Next Page
To Next Page IconTo Next Page
To Previous Page IconTo Previous Page
To Previous Page IconTo Previous Page
Loading...
ES 12
C - INSTALACIÓN
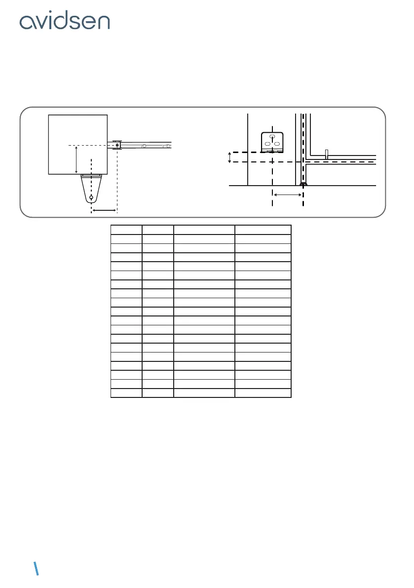
Mida la distancia D y consulte la tabla para conocer la distancia B que le permitirá determinar la posición
delapatadejaciónparapilar.Latablatambiénindicaeloricioenelcualdeberájarelcilindroala
patadejaciónenlacancela.
Laalturadelcentrodelapatadejacióndebeserlamismaqueladelcentrodelmontantedelacancela
alaquesevayaajarelcilindro.
D
B
pilar
B
23mm
D (mm) B (mm) oriciopatapilar ángulo máx. (°)
0 150 4 120°
10 150 4 120°
20 160 4 120°
30 150 4 115°
40 160 4 o 5 115°
50 150 4 110°
60 155 5 110°
70 145 4 o 5 105°
80 150 5 105°
90 135 5 100°
100 140 5 100°
110 145 5 100°
120 130 5 95°
130 135 5 95°
140 120 5 90°
150 115 5 90°
160 110 5 90°
170 100 5 90°
Marquelaubicacióndelosoriciosenelpilarteniendocuidadodequelapatadejaciónparapilaresté
montadacorrectamentehorizontalmentealnal.Usetirafondosdel10ocualquierotrosistemadejación
adaptado al material del pilar.
Atención,losesfuerzosenlapatadejaciónseránimportantescuandolamotorizaciónestéenmarcha.
Recomendamos sellar las varillas roscadas con una longitud de al menos 15 cm. Si el pilar es de metal,
recomendamossoldarotraspasarlasvarillasroscadasparajarlascontuercasautobloqueantes.
En caso de duda, consulte con un profesional.
Gire el cilindro y asegúrese de que la varilla del carro de arrastre se encuentra a aproximadamente 5 mm
del extremo opuesto al motor. De lo contrario, desplace el carro de arrastre con una pila de 9 V LR61.
También se pueden conectar los motores a la tarjeta electrónica (consulte el capítulo de conexión) e iniciar
el modo manual para alimentar los motores mientras ajusta la posición del carro.

Table of Contents

Related product manuals