EasyManua.ls Logo

Baader IS-028 - Work Area Is-28

Baader IS-028
65 pages
Print Icon
To Next Page IconTo Next Page
To Next Page IconTo Next Page
To Previous Page IconTo Previous Page
To Previous Page IconTo Previous Page
Loading...
IS-28/28s
Baader Ísland ehf, Hafnarbraut 25, Kopavogur, IcelandTel: +354 520 6900 Fax: +354 520 6911
lager@baader.is / www.baader.is
18
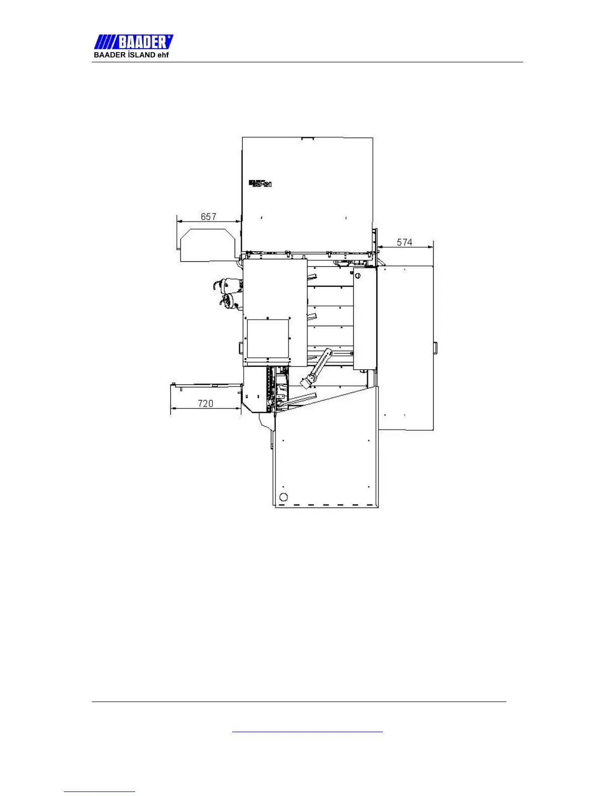
WORK AREA IS-28
The machine must be accessible on both sides for maintenance and adjustment.
Space for the operator must be secured next to the tray on the side of the machine
where the knives are and the platform must be on the right side of the machine to
enable easy replacement of knives.

Table of Contents