EasyManua.ls Logo

Bosch Rexroth IndraDrive HMV - HMS02 Power Sections; Brief Description, Usage and Structure

Bosch Rexroth IndraDrive HMV
382 pages
Print Icon
To Next Page IconTo Next Page
To Next Page IconTo Next Page
To Previous Page IconTo Previous Page
To Previous Page IconTo Previous Page
Loading...
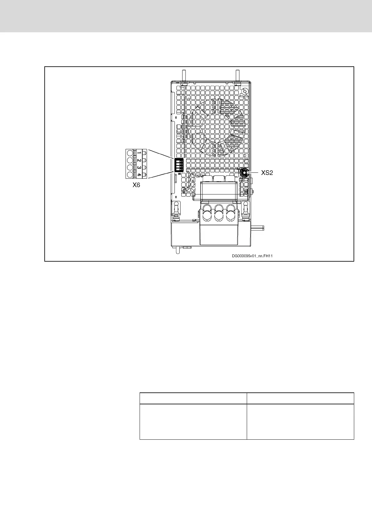
Connections at power section (bottom)
X6 motor temperature monitoring and motor holding brake
XS2 shield connection (motor power cable)
Fig.6-47: Connections at power section (bottom) HMS01.1N-W0350
Description of the Connection Points
The connection points are described in detail in chapter 8 Functions and Elec‐
trical Connection Points , page 241.
Touch Guard
The touch guard is described in detail in chapter 9 Touch Guard at Devices ,
page 291.
6.3 HMS02 Power Sections
6.3.1 Brief Description, Usage and Structure
Brief Description
The HMS02 inverters are part of the Rexroth IndraDrive M product range and
are used to operate single axes.
Usage
The different types are used as follows:
Type Usage
HMS02.1E-Wxxxx-NNNN single-axis device
Operation of a three-phase a.c. mo‐
tor (asynchronous or synchronous
motor).
Fig.6-48: Usage
Project Planning Manual | Rexroth IndraDrive Electric Drives
and Controls
| Bosch Rexroth AG 141/369
Power Sections for Inverters - IndraDrive M

Table of Contents

Related product manuals