EasyManua.ls Logo

Bosch Rexroth IndraDrive X - Xmd1-W5454;-W7070

Bosch Rexroth IndraDrive X
140 pages
Print Icon
To Next Page IconTo Next Page
To Next Page IconTo Next Page
To Previous Page IconTo Previous Page
To Previous Page IconTo Previous Page
Loading...
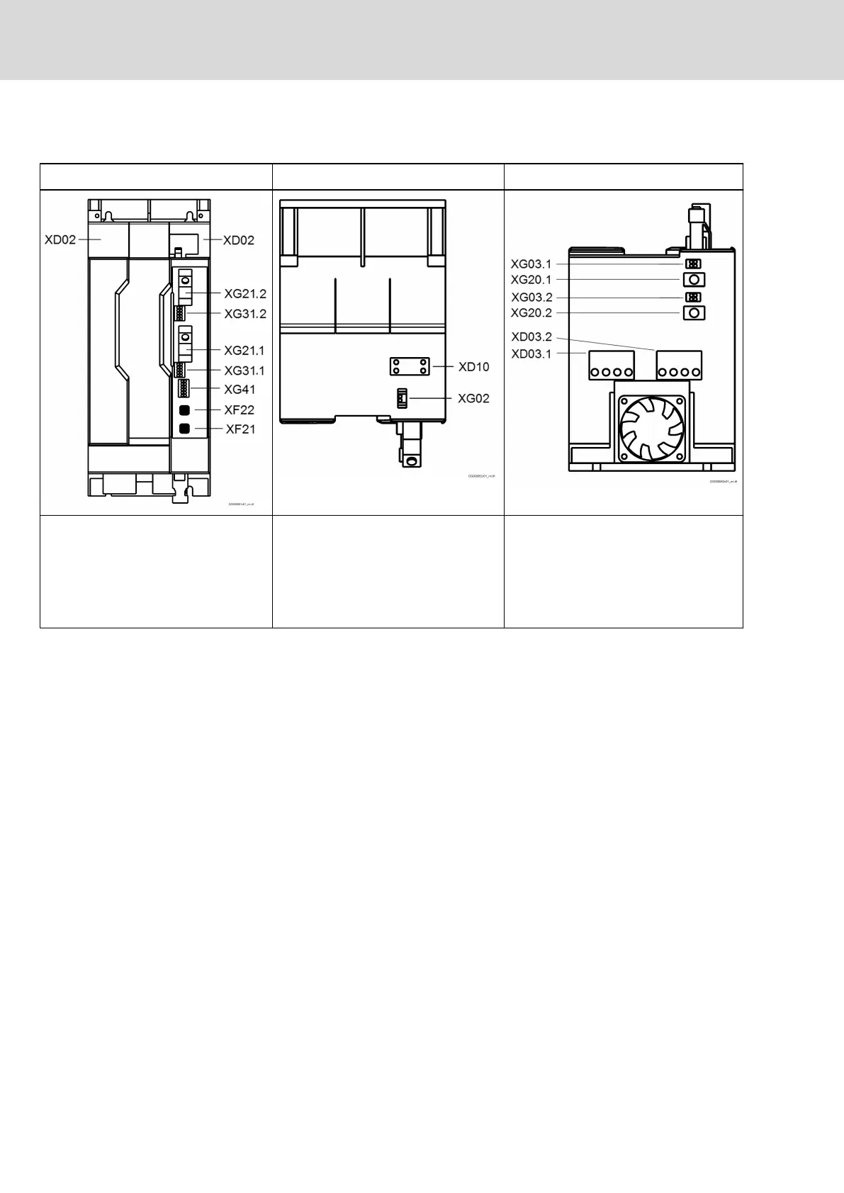
XMD1-W5454/-W7070
Front Top Bottom
XD02: DC bus
XG21: Multi-encoder
XG31: Digital inputs/outputs
XG41: Safety technology
XF21, XF22: Communication
XD10: Control voltage
XG02: Ready for operation relay
contact
XG20: Digital encoder connection
XD03: Motor connection
XG03: Motor temperature monitoring
and motor holding brake
Tab. 9-5: Connection points
42/123
Interfaces
IndraDrive X Drive Controllers Power Sections XCS1, XMD1,
XMQ1
Bosch Rexroth AG R911392532_Edition 01

Table of Contents

Related product manuals