EasyManua.ls Logo

btsr MATRIX CUBE - Page 18

Default Icon
129 pages
Print Icon
To Next Page IconTo Next Page
To Next Page IconTo Next Page
To Previous Page IconTo Previous Page
To Previous Page IconTo Previous Page
Loading...
Installation and Connections
MATRIX CUBE - 4 -
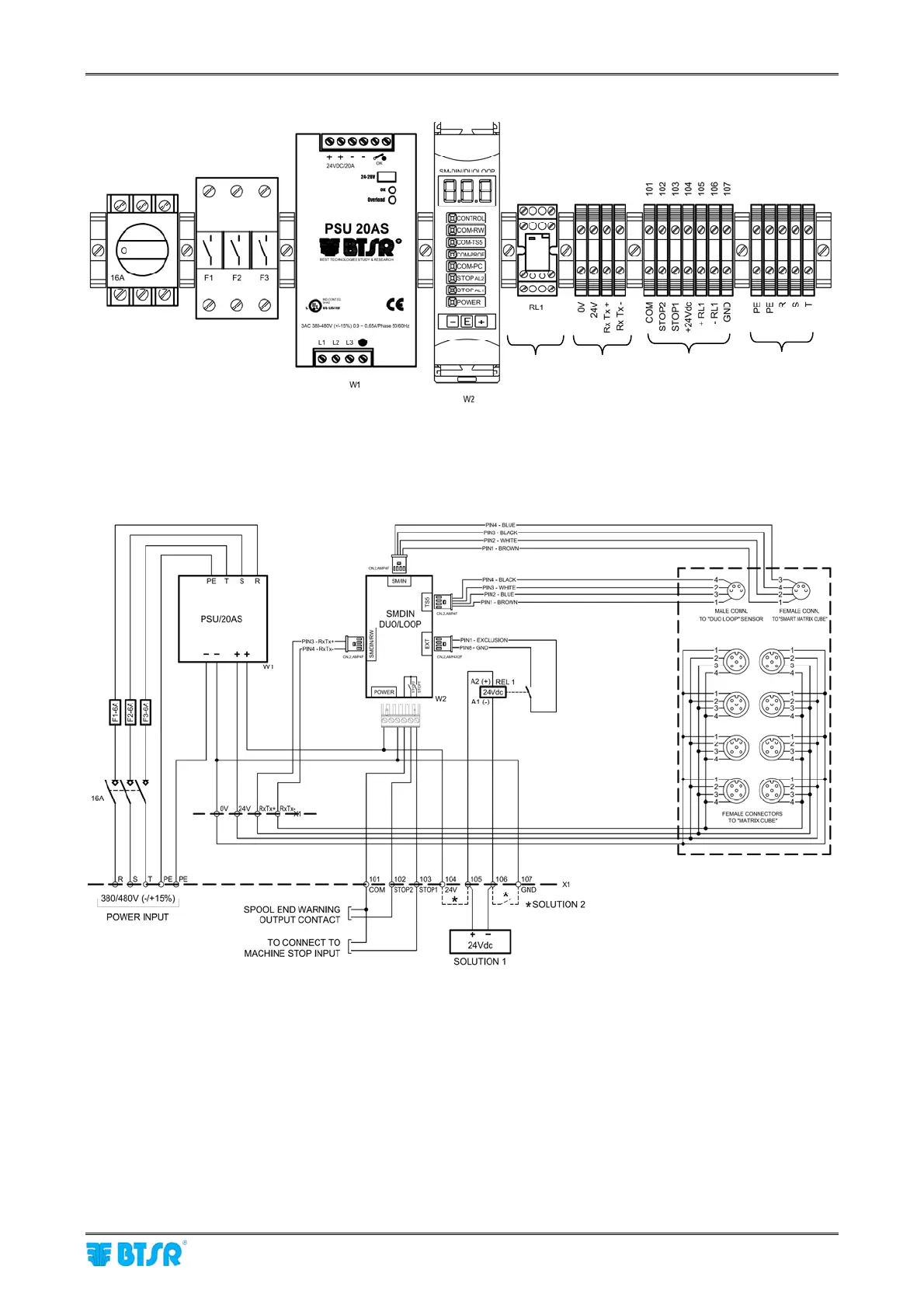
Topographic View of MASTER CUBE Box
MASTER CUBE Interconnection Diagram
SERIAL
INTERFACE
MACHINE
INTERFACE
THREE PHASE
POWER SUPPLY
+ GROUND
PROTECTION
FUSES
MAIN SWITCH
START/STOP
RELAY

Table of Contents

Related product manuals