EasyManua.ls Logo

Contex COUGAR 36 - Page 190

Contex COUGAR 36
258 pages
Print Icon
To Next Page IconTo Next Page
To Next Page IconTo Next Page
To Previous Page IconTo Previous Page
To Previous Page IconTo Previous Page
Loading...
FSG/MTM/001 060511
186
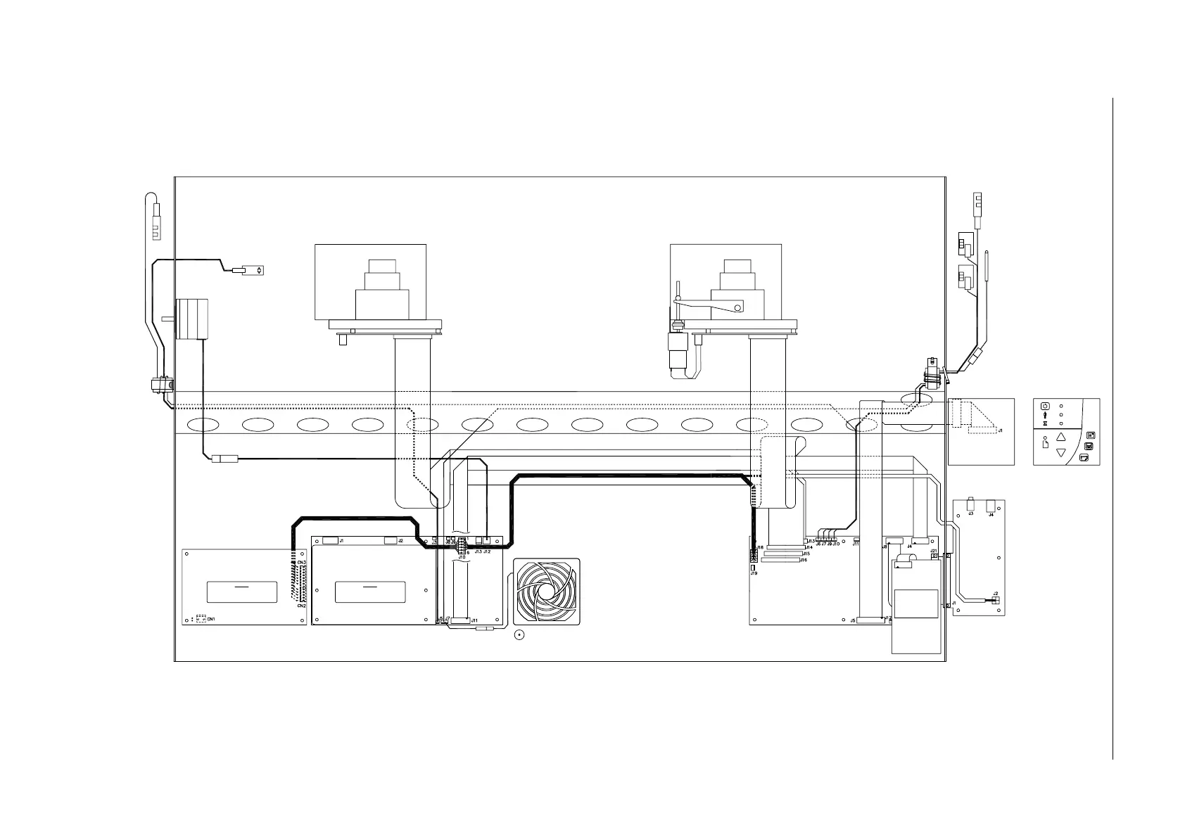
Fig. 11-8 CHAMELEON 36, PREMIER 36, Secondary Wiring
Di s c o n n e c t po w e r plu g and allow for 2 mi nutes
d isch arge time before tou ch in g d ischarge time before tou chin g
Di s c o n n e c t po w e r plu g and allow for 2 mi nutes
SMPS
C om po nent s shi e ld ed by this cover
rep resent risk of el ectric chock.
WA RNING
LME
rep resent risk of el ectric chock.
Compo nents shi elded by this cover
WA RNING
THICKNESS
SEN SOR
LAMP SENSOR
(FRONT LAMP)
CBx
NTC
SE N SOR
(FAN)
THICKNESS
SEN SOR
No te :
Air flow into s canner
SCR
IMx
SUx
SKD
CBx
OIB
OIB

Table of Contents